Email : nhadepthudo789@gmail.com
Hotline : 0978987813
Dự án Nhóm nhà ở Tây Nam Mễ Trì nằm trên diện tích 57.490m2 gồm 3 tòa nhà ở xã hội, 65 căn biệt thự liền kề. Năm 2023 dự án được khởi công xây dựng phần nhà ở biệt thự liền kề. Nhà ở xã hội Mễ Trì dự kiến khởi công quý 1/2026. Nhà ở thương mại mở bán tháng 11/2025.
Phòng Kinh Doanh: 0961 225 991 (call/zalo)
Zalo tài liệu và bảng giá mới nhất: https://zalo.me/0961225991

| Tên dự án: | Nhóm nhà ở Tây Nam Mễ Trì |
| Địa chỉ: | Đại lộ Thăng Long, Phường Từ Liêm, Hà Nội |
| Chủ đầu tư: | Công ty CP Xây dựng và phát triển nhà DAC |
| Quy Mô | • Diện tích dự án: 57.490m2. • Diện tích xây dựng nhà ở: 9.519m2 + 7.924m2 đất xây dựng 65 căn nhà thấp tầng + 1.595m2 đất xây dựng 01 nhà chung cư 12 tầng +2 tầng hầm • Diện tích làm cơ quan làm việc Bộ Tư lệnh Bảo vệ lăng (Đoàn 257): 4.788m2 • Diện tích mặt nước hồ điều hòa nội khu: 4.900m2 • Diện tích đất thuộc hành lang sông Nhuệ, vỉa hè, cây xanh, hạ tầng kỹ thuật sử dụng chung: 3.251m2 • Diện tích đất giao thông: 579m2 • Đất cây xanh: 4.002m2 • Đất xây dựng bãi xe, sân tennis : 2.258 m2 • Đất nằm trong hành lang bảo vệ tuyến điện cao thế, hành lang bảo vệ sông Nhuệ, sân đường, vỉa hè, vườn hoa cây xanh, đường nội bộ và HTKT chung là 34.036m2 • Diện tích quy hoạch nhà ở xã hội: quỹ đất 20% ( 2.308m2 ) của dự án CĐT đang tiến hành thủ tục pháp lý để được xây dựng. |
| Giá bán: | Biệt thự liền kề từ 180tr/m2. NOXH từ 17tr/m2. Nhà ở thương mại giá từ 90 triệu. |
| Pháp lý: | Sở hữu lâu dài |
| Bàn Giao: | Biệt thự liền kề: tháng 2/2025 Nhà ở xã hội Mễ Trì: Quý 4/2027 |
Phòng Kinh Doanh: 0961 225 991 (call/zalo)
Zalo tài liệu và bảng giá mới nhất: https://zalo.me/0961225991
Nhóm nhà ở Tây Nam Mễ Trì tháng 11/2025
Vị trí dự án nhóm nhà ở Tây Nam Mễ Trì có địa chỉ mặt đường Đại lộ Thăng Long, phường Từ Liêm. Đây là nơi có trục đường huyết mạch, cửa ngõ phía Tây thủ đô cũng là trung tâm văn hóa thể thao, hành chính công của Hà Nội.

Nhóm nhà ở Tây Nam Mễ Trì có vị trí ngay mặt đường đầu đại lộ Thăng Long
Khu nhà ở Tây Nam Mễ Trì, phường Phú Đô có 4 mặt tiếp giáp:
• Mặt Phía Đông: Tiếp Giáp khu dân cư Phú Đô.
• Mặt Phía Tây: Tiếp Giáp sông Nhuệ.
• Mặt Phía Nam: Tiếp Giáp đường gom đại lộ Thăng Long.
• Mặt Phía Bắc: Tiếp Giáp khu dân cư Phú Đô.
Từ dự án, cư dân tương lai có thể dễ dàng di chuyển vào trung tâm bằng các tuyến đường giao thông hiện đại như: Đại lộ Thăng Long, Lê Quang Đạo, đường Châu Văn Liêm,…
Phòng Kinh Doanh: 0961 225 991 (call/zalo)
Zalo tài liệu và bảng giá mới nhất: https://zalo.me/0961225991
Vị trí nhóm nhà ở Tây Nam Mễ Trì rất thuận tiện di chuyển
Ngoài ra, nhà ở xã hội Mễ Trì nằm trong khu vực có cơ sở hạ tầng xã hội đồng bộ và hiện đại nhất thủ đô.Xung quanh dự án có nhiều cơ sở giáo dục đẳng cấp quốc tế, các khu vui chơi giải trí lớn, các cơ sở y tế, đặc biệt là hệ thống dân cư có dân trí cao liền kề dự án như: Bộ Ngoại giao, Trung tâm hội nghị quốc gia, Keangnam, The Manor, The Garden, Grand Plaza, Big C, bệnh viện quốc tế Hồng Ngọc…
- Cách sân vận động Mỹ Đình: 5 phút di chuyển
- Cách bệnh viện Hồng Ngọc 3 phút di chuyển
- Cách Công viên Mễ trì 4 phút di chuyển
- Cách Big C Thăng Long 8 phút di chuyển
- Cách bảo tàng lịch sử quân sự Việt Nam 3 phút di chuyển.
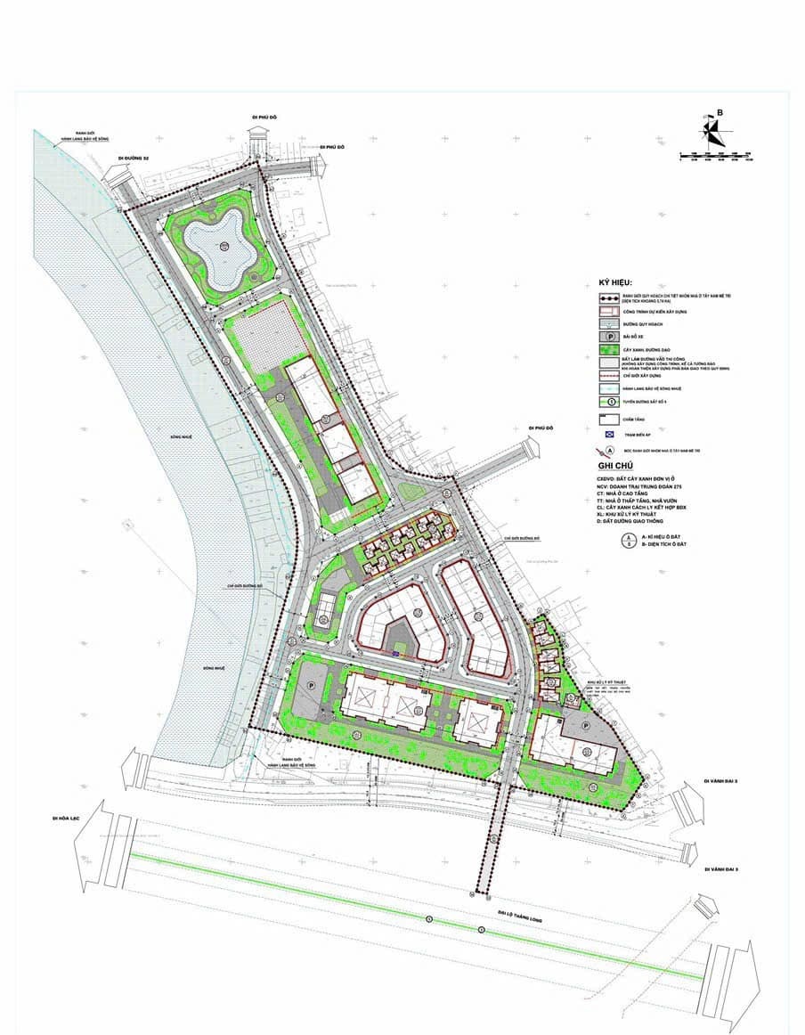
Quy hoạch Nhóm nhà ở Tây Nam Mễ Trì gồm: Đất bàn giao cho Bộ Tư lệnh bảo vệ Lăng Chủ tịch Hồ Chí Minh xây dựng doanh trại Đoàn 275 diện tích 4.788m2; Đất cây xanh đơn vị ở bàn giao cho UBND quận Nam Từ Liêm là 4.002 m2; Đất phải bàn giao cho TP thuộc quỹ đất 20% là 2.308m2; Đất xây dựng bãi xe, sân tennis là 2.258 m2; Đất xây dựng nhà ở 9.519m2 (trong đó: 7.924m2 đất xây dựng 65 căn nhà thấp tầng và 1.595m2 đất xây dựng 01 nhà chung cư 12 tầng + 2 tầng hầm);

Đất để mở đường vào thi công là 579m2; đất nằm trong hành lang bảo vệ tuyến điện cao thế, hành lang bảo vệ sông Nhuệ, sân đường, vỉa hè, vườn hoa cây xanh, đường nội bộ và hạ tầng kỹ thuật chung là 34.036m2.
Phòng Kinh Doanh: 0961 225 991 (call/zalo)
Zalo tài liệu và bảng giá mới nhất: https://zalo.me/0961225991

Dự án nhóm nhà ở Tây nam Mễ Trì có chiều sâu được bố trí phân bố như sau:
+ Nằm trên mặt đường Đại Lộ Thăng Long sẽ là các tòa chung cư cao 12 tầng
+ Tiếp sau đó sẽ là khu vực xây dựng các căn nhà biệt thự, liền kề. Được chia thành 2 Block TT1 và TT2
+ Bãi đỗ xe và khu vực sân thể thao được làm ở phía giáp sông Nhuệ
+ Đoàn 257 được bố trí tại phần giữa của dự án
+ Cuối cùng là khu vực hồ cảnh quan
Quy hoạch có các trục đường chính chạy từ Đại lộ Thăng Long dọc theo sông Nhuệ để đi vào các khu bên trong nội khu. Từ trục đường chính sẽ có các đường nhánh kết nối với khu dân cư phường Phú Đô và các tuyến đường xung quanh.
Tuyến đường dọc sông Nhuệ của nhóm nhà ở này có mặt cắt ngang 17,5m; các tuyến đường nhánh có mặt cắt ngang 11,5m và 13,5m.
**************
a. Liền kề Tây Nam Mễ Trì
Sản phẩm liền kề Tây Nam Mễ Trì Sở hữu thiết kế hiện đại và tính tiện nghi cao, cùng với diện tích từ 75m2 - 95m2, xây 4 tầng, mang đến trải nghiệm sống văn minh và thời thượng.
Liền kề Tây Nam Mễ Trì thiết kế 4 tầng + 1 tum được xây thô hoàn thiện mặt ngoài đã hoàn thiện và chuẩn bị được bàn giao
Giá: dao động 20 - 22 tỷ đồng.
Diện tích: dao động 75m2 - 97m2
Công năng: 4 phòng ngủ + 1 vệ sinh
Phòng Kinh Doanh: 0961 225 991 (call/zalo)
Zalo tài liệu và bảng giá mới nhất: https://zalo.me/0961225991
Liền kề nhóm nhà ở Tây Nam Mễ Trì



Shophouse Tây Nam Mễ Trì
Loại hình Shophouse được thiết kế từ 95m2, mật độ xây dựng 80 – 85%, chiều cao 5 tầng. Ưu điểm của dòng sản phẩm nằm ở khả năng để ở & kinh doanh 2 trong 1 linh hoạt.
Giá: dao động 25 tỷ đồng
Diện tích: 97m2 - 177m2
Công năng: 2 phòng ngủ + 1 vệ sinh
Phòng Kinh Doanh: 0961 225 991 (call/zalo)
Zalo tài liệu và bảng giá mới nhất: https://zalo.me/0961225991
******
b. Biệt thự Tây Nam Mễ Trì
Biệt thự tại dự án nhóm nhà ở Tây Nam Mễ Trì có tổng 19 căn được thiết kế tối ưu hóa, diện tích từ 140m2, mật độ xây dựng 40 – 60%, chiều cao 4 tầng.
Biệt thự dự án Tây Nam Mễ Trì với số lượng rất ít đang được hoàn thiện
Biệt thự nhóm nhà ở Tây Nam Mễ Trì




Giá: dao động 28 tỷ/ căn
Diện tích dao động: 127m2 - 198m2
Công năng: 4 phòng ngủ + Gara
Phòng Kinh Doanh: 0961 225 991 (call/zalo)
Zalo tài liệu và bảng giá mới nhất: https://zalo.me/0961225991
**********
Chung cư Thương mại CT1a Tây Nam Mễ Trì được khởi công quý IV/2024, hiện tại đang triển khai thi công phần hầm. Dự kiến mở bán Chung cư Thương mại CT1a Tây Nam Mễ Trì vào tháng 6/2025.
Các căn hộ CT1a Tây Nam Mễ Trì đều được thiết kế thông thoáng đón hướng nắng, hướng gió tự nhiên, ban công, cửa sổ hướng ra tầm view tuyệt đẹp về hướng sông, hồ nước hay công viên.
Xem chi tiết tại: Chung cư Thương mại CT1a Tây Nam Mễ Trì mở bán

♦ Diện tích căn hộ thương mại CT1a Nhóm nhà ở Tây Nam Mễ Trì:
Căn 2 ngủ: 69,6m2 – 79,7m2 - 84m2.
Căn 3 ngủ: 78,8m2 – 82m2- 150m2 – 156m2.
Chung cư Thương mại CT1a Tây Nam Mễ Trì mở bán tháng 11/2025.
Tin vui dành cho người thu nhập thấp năm 2025 đó là Hà Nội có thêm một dự án nhà ở xã hội nằm tại phường Phú Đô, quận Nam Từ Liêm có tên là Nhà ở xã hội Tây Nam Mễ Trì. UBND TP Hà Nội đã hoàn thành công tác thu hồi đất, giải phóng mặt bằng, phê duyệt các thủ tục pháp lý để chủ đầu tư bắt đầu thi công xây dựng.
Hiện tại tháng 11/2025 dự án Nhà ở xã hội Tây Nam Mễ Trì chưa mở bán. Dự kiến thời gian khởi công vào quý I/2026.
Khi dự án Nhà ở xã hội Tây Nam Mễ Trì đủ điều kiện kinh doanh, Chủ đầu tư sẽ cung cấp đầy đủ thông tin về việc tiếp nhận hồ sơ đăng ký mua nhà và công bố công khai trên cổng thông tin điện tử của Sở Xây dựng Hà Nội hoặc thông tin chính thức từ Chủ đầu tư. Kính mong quý khách hàng cảnh giác các thông tin giao bán NOXH trên các mạng xã hội.

Pháp lí nhà ở xã hội Mễ Trì: UBND Thành phố Hà Nội phê duyệt Quy hoạch chỉ tiết tỷ lệ 1/500 tại Quyết định số 120/2005/QĐ-UB ngày 03/08/2005 và điều chỉnh cục bộ tại Quyết định số 4517/QĐ-UBND ngày 22/8/2019.
Sở Xây dựng Hà Nội thẩm định bản vẽ thiết kế cơ sở của dự án, thiết kế cơ sở hạng mục khu nhà thấp tầng, thiết kế cơ sở hạng mục hạ tầng kỹ thuật tại Văn bản số 1222/TĐ-SXD ngày 16/8/2006, Văn bản số 10806/SXD-QLXD ngày 10/11/2017, Văn bản số 7749/SXD-QLXD ngày 26/08/2020.
Khu đất triển khai các tòa Nhà ở thương mại Mễ Trì đã được chuẩn bị công tác xây dựng quý 2/2025.
Hiện tại vấn đề pháp lý và giải phóng mặt bằng đã hoàn tất, chủ đầu tư DAC đang tiến hành xây dựng 65 lô biệt thự và liền kề. Còn tòa chung cư 12 tầng thương mại sẽ được mở bán vào tháng 11/2025.
Với thiết kế tận dụng tối đa ánh sáng và không khí từ thiên nhiên các căn hộ tại nhà ở xã hội Mễ Trì có không gian mở với 2 logia. Kiến trúc căn hộ được tối ưu hóa với công năng sử dụng cùng vẻ đẹp đẳng cấp, tiện nghi.

Biệt thự liền kề tại dự án Tây Nam Mễ Trì vừa là nơi an cư lý tưởng đồng thời cũng là phương án kinh doanh tuyệt vời tại địa điểm đắc địa khi đưa vào sử dụng.
Diện tích căn hộ tại đây đa dạng ở mức trung bình và lớn từ 62 - 70m2 phù hợp với nhu cầu của khách hàng. Các căn hộ được bố trí từ 2 phòng ngủ có thể sử dụng gia dình từ ít đến đông thành viên.
Nhóm nhà ở Tây Nam Mễ Trì được xây dựng trên diện tích đất rộng 5,7ha. Mật độ xây dựng thấp chỉ chiếm 30%, đa phần diện tích đất bố trí cho cảnh quan không gian xanh, sân vườn, cây xanh, khu vui chơi, thư giãn, đường dạo bộ và một số các tiện ích phục vụ cư dân.
Phòng Kinh Doanh: 0961 225 991 (call/zalo)
Zalo tài liệu và bảng giá mới nhất: https://zalo.me/0961225991
Hồ công viên dự án Tây Nam Mễ Trì đã hoàn thiện thi công và tích nước, kế hoạch trồng hoa và cây xanh được chuẩn bị triển khai.
Ngoài ra, tại chân đế các tòa Nhà ở xã hội Mễ Trì chủ đầu tư còn bố trí các tiện ích như: Siêu thị mini, nhà sách, phòng khám, phòng sinh hoạt cộng đồng, nhà hàng ẩm thực phong phú, cà phê, phòng thể thao... nhằm đáp ứng tối đa nhu cầu giải trí, vui chơi và làm việc của cư dân.
Khu vực thể thao nội khu tiện ích Chung cư Tây Nam Mễ Trì
Bãi đỗ xe Tây Nam Mễ Trì
Ngoại khu: Trong phạm vi 1 Km có đầy đủ Siêu thị, Ngân hàng, Trường học, Bệnh viện đa khoa, Trung tâm thương mại.
Với phương châm “Xây nhà cho khách phải giống như xây nhà cho mình”, Chủ đầu tư Dự án Nhà ở xã hội Mễ Trì đã rất chú trọng lựa chọn đối tác tư vấn thiết kế, nhà thầu thi công và đơn vị giám sát uy tín hàng đầu. Ngoài ra, vật liệu sử dụng cho công trình cũng đều được kiểm định nghiêm ngặt, đảm bảo sự tiện dụng và tối tân nhất, mang đến không gian sống chất lượng cho cư dân.
Tiến độ dự án tháng 12/2024 khu nhà ở liền kề đã xây dựng hoàn thiện phần thô 100%, các căn liền kề sẽ được bàn giao hoàn thiện mặt ngoài.
Tiến độ nhóm nhà ở Tây Nam Mễ Trì tháng 11/2024 các tuyến đường nội khu dự án đã hoàn thiện. Khu nhà liền kề đã xây xong thô và hoàn thiện mặt ngoài, biệt thự đang được hoàn thiện mặt ngoài
Cơ quan làm việc Bộ Tư lệnh Bảo vệ lăng (Đoàn 257) chuẩn bị được đưa vào sử dụng.

Nhóm nhà ở Tây Nam Mễ Trì với vị trí đắc địa mặt đại lộ Thăng Long. Khu nhà ở xã hội Mễ Trì sẽ được triển khai khởi công trong quý II/2025.
Nhà ở xã hội Mễ Trì được xây dựng lên với mục đích cung cấp những căn hộ với mức giá thành rẻ, hợp lý phù hợp với một số lượng người lao động có mức thu nhập thấp, hoặc trung bình. Vì lý do đó, nhà ở xã hội Mễ Trì cũng có một số quy định dành riêng để giới hạn người mua, nhằm đảm bảo đúng mục đích, đúng đối tượng sử dụng.
Theo Điều 49 Luật Nhà ở 2014, có 10 đối tượng được mua nhà ở xã hội, nếu đáp ứng được các điều kiện đủ, cụ thể:
1. Người có công với cách mạng theo quy định của pháp luật về ưu đãi người có công với cách mạng;
2. Hộ gia đình nghèo và cận nghèo tại khu vực nông thôn;
3. Hộ gia đình tại khu vực nông thôn thuộc vùng thường xuyên bị ảnh hưởng bởi thiên tai, biến đổi khí hậu;
4. Người thu nhập thấp, hộ nghèo, cận nghèo tại khu vực đô thị;
5. Người lao động đang làm việc tại các doanh nghiệp trong và ngoài khu công nghiệp;
6. Sĩ quan, hạ sĩ quan nghiệp vụ, hạ sĩ quan chuyên môn kỹ thuật, quân nhân chuyên nghiệp, công nhân trong cơ quan, đơn vị thuộc công an nhân dân và quân đội nhân dân;
7. Cán bộ, công chức, viên chức theo quy định của pháp luật về cán bộ, công chức, viên chức;
8. Các đối tượng đã trả lại nhà ở công vụ theo quy định.
9. Học sinh, sinh viên các học viện, trường đại học, cao đẳng, dạy nghề; học sinh trường dân tộc nội trú công lập được sử dụng nhà ở trong thời gian học tập.
10. Hộ gia đình, cá nhân thuộc diện bị thu hồi đất và phải giải tỏa, phá dỡ nhà ở theo quy định của pháp luật mà chưa được Nhà nước bồi thường bằng nhà ở, đất ở.
Khác với nhà ở thương mại, nhà ở xã hội Mễ Trì có những quy định rõ ràng về các đối tượng được phép mua nhà. Cụ thể:
• Người mua nhà ở xã hội Mễ Trì phải thuộc diện khó khăn về chỗ ở. Họ chưa được nhà nước giao đất theo quy định của pháp luật về đất đai. Họ phải là những người đang trong thời điểm đi thuê, mượn nhà hay ở nhờ nhà của người khác, hoặc có nhà nhưng bị nhà nước thu hồi phụ vụ cho việc giải phóng mặt bằng theo chủ trương của Đảng và Nhà nước.
• Người có nhu cầu mua nhà ở xã hội không cần phải có hộ khẩu thường trú tại Hà Nội.
• Người thu nhập thấp muốn nhà ở xã hội phải là người không thuộc diện phải nộp thuế thu nhập cá nhân thường xuyên theo quy định của pháp luật về thuế thu nhập cá nhân.
• Bên cạnh đó, việc mua nhà ở xã hội cũng áp dụng đối với những đối tượng có nhà ở thuộc quyền sở hữu của mình nhưng nhà ở chật chội, diện tích bình quân của hộ gia đình dưới 10m2/sàn/người. Hay nhà ở riêng lẻ diện tích bình quân dưới 10m2/sàn/người và diện tích khuôn viên đất thấp hơn tiêu chuẩn diện tích đất tối thiểu thuộc diện được phép cải tạo, xây dựng theo quy định của UBND cấp tỉnh nơi có nhà ở.

Nhận Thông Tin về sản phẩm Chung cư, Liền kề, Biệt thự Tây Nam Mễ Trì
Phòng Kinh Doanh: 0961 225 991 (call/zalo)
Zalo tài liệu và bảng giá mới nhất: https://zalo.me/0961225991
Xem thêm: Chung cư Thương mại CT1a Tây Nam Mễ Trì chi tiết dự án
Chat Zalo
Chat Facebook
google-site-verification=hg90Q844_wiZL5g9EUVvPQWAmc65rnDBQGoO_xmdDvM