Email : nhadepthudo789@gmail.com
Hotline : 0978987813
Dự án nhà ở xã hội NHS Trung Văn ngay mặt đường Tố Hữu, Trung Văn, Nam Từ Liêm được xây dựng trên diện tích gần 3000m2 với 32 tầng nổi 2 tầng hầm, tổng mức đầu tư gần 600 tỷ đồng đã nhận được nhiều sự quan tâm, là sự lựa chọn nơi an cư của rất nhiều người có thu nhập trung bình khá.
Phối cảnh khu Nhà ở xã hội NHS Trung Văn
| Tên dự án: | Nhà ở xã hội NHS Trung Văn (Nhà ở xã hội Trung Văn) |
|---|---|
| Chủ đầu tư: | Liên danh chủ đầu tư NHS |
| Vị trí: | ô đất HH–02A đường Tố Hữu, P.Trung Văn, Q. Nam Từ Liêm |
| Mật độ xây dựng: | 46,2 % |
| Quy mô: | 32 tầng nổi 2 tầng hầm, 275 căn hộ chung cư • 68 căn nhà ở xã hội thuê • 157 căn nhà ở xã hội bán • 50 căn thương mại |
| Chức năng | 2 tầng hầm Tầng 1: Thương mại + VP Tầng 2: Bãi đỗ xe thông minh Tầng 3-4-5-6: Sàn TM&VP Tầng 7-32: Căn hộ |
| Diện tích: | 69,9 - 76,8 - 87,9m2 |
| Tổng đầu tư: | 570.655.808.719 đồng |
| Chứng chỉ: | Chứng chỉ công trình xanh quốc tế |
| Tiện ích: | Trung tâm thương mại, Gym, Spa, nhà trẻ, siêu thị, vườn dạo bộ,… |
| Tổng thầu: | Công ty cổ phần LIDECO 1 |
| Sở hữu: | sổ hồng lâu dài |
| Khởi công: | 29/6/2022 |
| Bàn giao: | Quý I/2025 |
| Giá bán: | 19,5 triệu/m2 |
| Giá thuê: | 99,000 đồng/m2 |
| Nộp hồ sơ: | Đợt 1: 28/3 - 11/5/2023. Đợt 2: 5/2024 |
Chung cư NHS Trung Văn được bàn giao tới cư dân về ở từ cuối quý IV/2024.


Nhà ở xã hội NHS Trung Văn có vị trí đắc địa tại ngã tư đường Tố Hữu (Lê Văn Lương kéo dài) và đường Trung Văn thuộc Quận Nam Từ Liêm, TP Hà Nội. Vị trí này mang đến nhiều thuận lợi về kết nối cho cư dân sinh sống tại đây.
Sở hữu vị trí đắc địa nhờ nằm trên trục đường Tố Hữu với chiều dài 2,7km và 4 làn đường xe chạy rộng rãi, thông thoáng. Đây được coi là tuyến đường huyết mạch cho trục giao thông phía Tây Nam Hà Nội.
Vị trí kết nối thuận tiện của chung cư NHS Trung Văn
Dự án còn được thừa hưởng các tiện ích sẵn có từ cơ sở vật chất, hạ tầng đồng bộ tại khu vực Tây Hà Nội. Dự án này nằm cạnh các khu đô thị và hạng mục BĐS có sức hút lớn tại khu vực phía Tây tạo ra liên kết vùng đầy tiềm năng.
Từ đây dân cư có thể dễ dàng di chuyển đến các khu vực quận huyện trong thành phố qua các tuyến đường huyết mạch. Các yếu tố thông thương, phong thủy của dự án Nhà ở xã hội Trung Văn được các nhà đầu tư đánh giá cao.

• Phía Tây Bắc: Giáp mặt đường Tố Hữu
• Phía Đông Nam: Giáp hồ Trung Văn
• Phía Đông Bắc: Tiếp giáp đường Trung Văn và chung cư Bắc Hà
• Phía Tây Nam: Giáp dự án Roman Plaza
• Gần với tuyến đường như: Nguyễn Trãi, Lê Văn Lương, Khuất Duy Tiến, Trần Quang Đạo, Đường Vạn Phúc Hà Đông,…
• Khu đô thị Văn Phú – 4km
• Tàu điện Hà Đông – 600m
• Bệnh viện 103 – 2km
• Trường Quốc tế – 1km
• Bệnh viện Đa khoa Hà Đông – 2km
• Mê Linh Plaza Metro Hà Đông – 3.5km

Phía đông bắc dự án NHS Trung Văn tiếp giáp đường Trung Văn và chung cư Bắc Hà. Hai khu đất lớn đối diện phía bên kia đường Tố Hữu được bố trí cho dự án Công viên hồ điều hòa Trung Văn.
Vị trí thuận tiện của dự án NHS Trung Văn
Nhà ở xã hội Trung Văn được thiết kế theo Chứng chỉ công trình xanh EDGE. Hứa hẹn là nơi mang lại những tiện nghi hiện đại và sang trọng cho khách hàng.
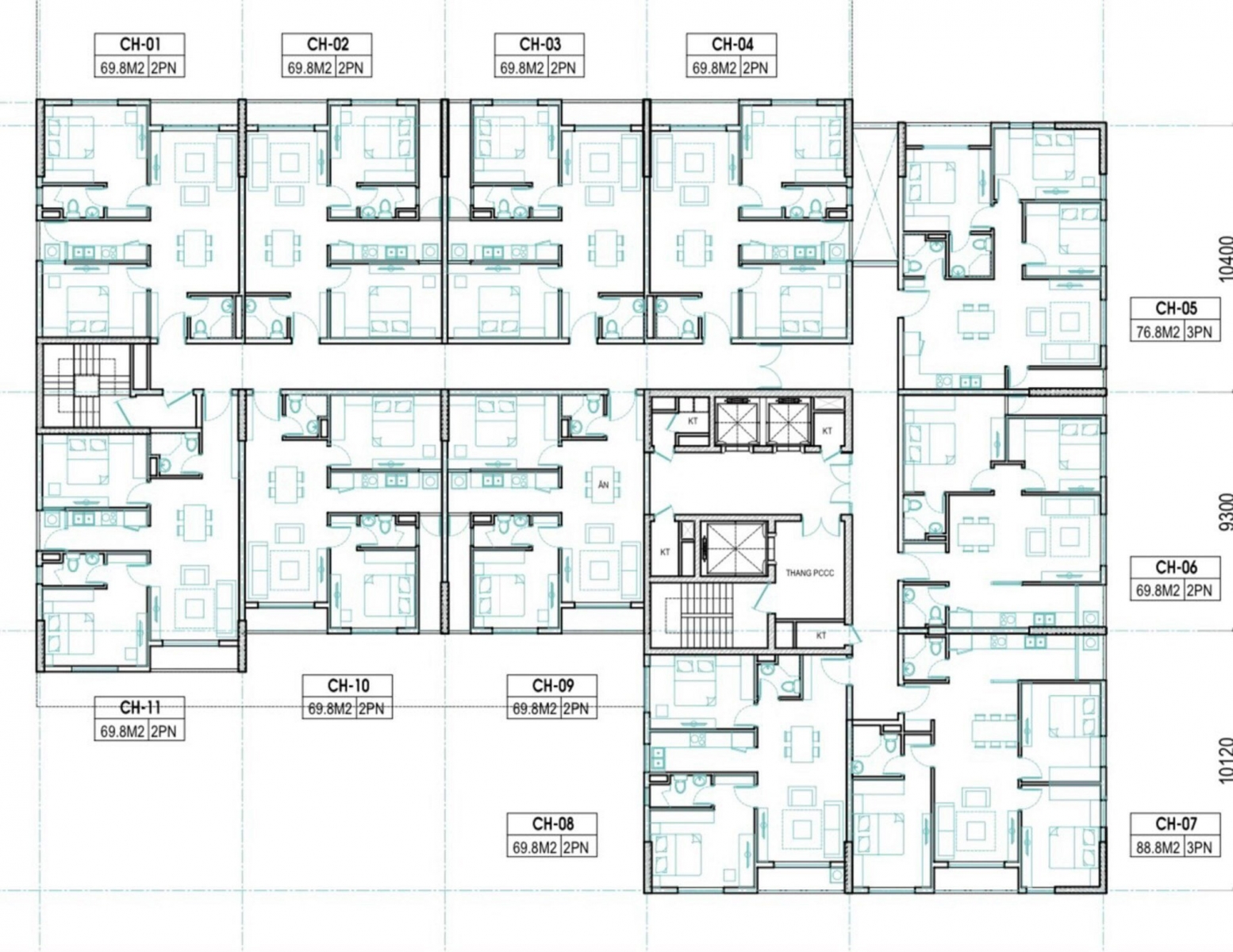
Mặt bằng chung cư NHS Trung Văn
Diện tích căn hộ tại đây đa dạng ở mức trung bình và lớn từ 70-90m2 phù hợp với nhu cầu của khách hàng. Các căn hộ được bố trí từ 2 đến 3 phòng ngủ có thể sử dụng cho mục đích dân sinh hoặc cho thuê, kinh doanh.
Với thiết kế tận dụng tối đa ánh sáng và không khí từ thiên nhiên các căn hộ tại chung cư Trung Văn có không gian mở với 2 logia. Kiến trúc căn hộ được tối ưu hóa với công năng sử dụng cùng vẻ đẹp đẳng cấp, tiện nghi.



Bảng cơ cấu căn hộ xã hội và thương mại NHS Trung Văn
Tầng 3-4-5-6: Sàn TM&VP
Diện tích: 70-88-93-100-109m2
Tạo dòng tiền 8-10%/ năm
Bàn giao dự kiến: Quý 2/2025
Cấp sổ hồng thời hạn 50 năm tính từ 2020
Tiến độ dự kiến: Khách hàng đóng tiến độ giãn 7 đợt theo tiến độ xây dựng: 30% ký HĐMB
Mặt bằng chân đế NHS Trung Văn
Dự án nhà ở xã hội NHS Trung Văn được khách mua nhà và các chủ đầu tư đánh giá cao nhờ các tiện ích nội và ngoại khu đầy đủ. Chủ đầu tư NHS rất chú trọng thiết kế quy hoạch các tiện ích phục vụ nhu cầu sống của dân cư.

Dân cư sống tại NOXH NHS Trung Văn có thể thoải mái tận hưởng các dịch vụ hàng đầu ngay trong chính lòng dự án. Cùng với đó có thể thừa hưởng các tiện ích ngoại khu có sẵn tại khu vực.
- Tiện ích Ngoại khu

- Tiện ích nội khu

Dự án NHS Trung Văn với điểm nhấn là hồ Trung Văn
Hiện nay giá bán Nhà ở xã hội NHS Trung Văn chỉ 19,5 triệu/m2.
Đây là mức giá rất tốt, cơ hội hiếm có cho các gia đình muốn sở hữu một căn hộ an cư gần trung tâm.
Bảng giá chi tiết căn hộ NHS Trung Văn sẽ liên tục được Nhà Đẹp Thủ Đô cập nhật
NHS Trung Văn tiếp nhận hồ sơ đợt 1 từ 26/3 - 11/5/2023
Sáng 20/5/2023 với 1300 hồ sơ tham gia bốc thăm và 149 hộ sơ được quyền mua căn hộ
Chung cư xã hội NHS Trung Văn linh hoạt cho khách hàng thanh toán theo tiến độ đảm bảo với tiến độ xây dựng dự án và thuận lợi nhất cho khách hàng. Với phương án giãn cách, khách hàng sẽ có thời gian chuẩn bị tài chính một cách tốt nhất.
Tiến độ thanh toán phù hợp, đảm bảo tuân thủ quy định của nhà nước về mua bán nhà ở hình thành trong tương lai.

Tiến độ thanh toán dự kiến NHS Trung Văn:
♦ Đặt cọc: 50.000.000 VNĐ
♦ Đợt 1: Thanh toán 20% Giá trị căn hộ (bao gồm đặt cọc) khi ký HDMB
♦ Đợt 2: Thanh toán 20%(bao gồm VAT)
♦ Đợt 3: Thanh toán 15%(bao gồm VAT)
♦ Đợt 4: Thanh toán 15%(bao gồm VAT)
♦ Đợt 5: Thanh toán 25% (bao gồm VAT)
♦ Đợt 6: Thanh toán 5% (bao gồm VAT)
Hỗ trợ gói vay mua căn hộ tại NHS Trung Văn
Lãi suất 4,8% vay mua nhà ở xã hội từ 10/5/2023 là sự động viên rất lớn tới người mua nhà
Với phương châm “Xây nhà cho khách phải giống như xây nhà cho mình”, Chủ đầu tư Dự án Nhà ở xã hội NHS Trung Văn đã rất chú trọng lựa chọn đối tác tư vấn thiết kế, nhà thầu thi công và đơn vị giám sát uy tín hàng đầu. Ngoài ra, vật liệu sử dụng cho công trình cũng đều được kiểm định nghiêm ngặt, đảm bảo sự tiện dụng và tối tân nhất, mang đến không gian sống chất lượng cho cư dân.
Tiến độ NHS Trung Văn 22/5/2023
Tiến độ NHS Trung Văn 12/6/2023 thi công tầng 5
Tháng 7, NHS Trung Văn thi công tầng 7-8
Tiến độ nhà ở xã hội NHS Trung Văn 15/8/2023 triển khai thi công tầng 13
Tiến độ nhà ở xã hội NHS Trung Văn 8/9/2023 thi công tầng 16
Ngày 5/10/2023 nhà ở xã hội NHS Trung Văn thi công phần thô các hạng mục tới tầng 20
Tiến độ chung cư NHS Trung Văn 25/12/2023 dự án đã cất nóc và xây ngăn phòng tới tầng 26. Với tiến độ thi công tốt như vậy, hi vọng cư dân sẽ có thể nhận nhà sớm vào quý IV/2024
Tiến độ nhà ở xã hội NHS Trung Văn ngày 21/4/2024 đang tiến hành sơn lót mặt ngoài. Bên trong căn hộ đi vào hoàn thiện trần thạch cao, lắp đặt thiết bị đạt 35% khối lượng
Tiến độ chung cư NHS Trung Văn tháng 6/2024 đã hoàn thiện 90% lắp kính mặt ngoài, 100% ngăn phòng và hoàn thiện thô căn hộ, các đơn vị tập trung hoàn thiện hệ thống điện nước chiếu sáng, hệ thống phòng cháy chữa cháy, công tác sơn lót mặt ngoài gần thoàn thiện.

chung cư NHS Trung Văn từ hướng hồ Trung Văn
Tiến độ chung cư NHS Trung Văn bàn giao quý IV/2024
Tiến độ dự án sẽ luôn được Nhà Đẹp Thủ Đô cập nhật liên tục từng ngày mong quý khách dõi theo thường xuyên.
Chủ đầu tư: Công ty cổ phần đầu tư xây dựng NHS
Vị trí: phường tại ô đất HH – 02A Đông Nam đường Tố Hữu , phường Trung Văn
Cụ thể quy mô dự án NHS Trung Văn:
Công trình có 275 căn hộ. Diện tích xây dựng 1.260 m3, tổng diện tích sàn xây dựng không kể tầng hầm là 34.560 m2. Mặt bằng bố trí như sau:
- Tầng hầm (02 tầng): Với chức năng để xe và kỹ thuật toàn nhà; Tổng diện tích sàn khoảng 5.330m2; tầng hầm B1 cao 3,3m, tầng hầm B2 cao 4,8m
- Tầng 1: Với chức năng chính là Văn phòng, dịch vụ thương mại, sảnh căn hộ, phòng trực PCCC; tổng diện tích sàn khoảng 1.260m2; tầng cao 4,5m
- Tầng 2: Với chức năng chính là để xe đạp xe máy, Phòng Sinh hoạt cộng đồng, Văn phòng BQL; Tổng diện tích sàn khoảng 1.252,6m2; tầng cao 3,6m.
- Tầng 3-:-6: Với chức năng chính là Văn phòng, dịch vụ thương mại; Diện tích mỗi sàn khoảng 1252,6m2; tầng 3, 4 và 5 cao 3,6m; tầng 6 cao 5,7m; Tầng kỹ thuật cao 2,1m bố trí làm không gian kỹ thuật (S: 33,4m2)
- Tầng 7-:-12 và 14-:-32 : Với chức năng căn hộ chung cư (11 căn hộ/sàn tầng); Diện tích sàn mỗi tầng khoảng 1038,6m2 ( Căn hộ có các diện tích 69,9m2, 76,8m2 và 87,9m2); Chiều cao mỗi tầng 3,2m.
Tổng số căn hộ:
Tổng số căn hộ: 275 căn (100% diện tích sàn nhà ở). Trong đó:
Số căn hộ nhà ở xã hội: 225 căn hộ (80% diện tích sàn nhà ở);
- Số căn hộ để kinh doanh thương mại: 50 căn hộ (20% diện tích sàn nhà ở).
Số căn hộ mở bán, cho thuê Đợt 1:
- Tổng số căn hộ nhà ở xã hội: 225 căn (80% diện tích sàn nhà ở). Trong đó: + Số căn hộ nhà ở xã hội để bán: 157 căn (56% diện tích sàn nhà ở); (Diện tích từ 69.9 m2 đến 76.8 m3)
+ Số căn hộ nhà ở xã hội để cho thuê: 68 căn (24% diện tích sàn nhà ở).
(Diện tích từ 69.9 m2 đến 76.8 m3)
- NHS Trung Văn mở bán đợt 2 dự kiến vào tháng 5/2024 để bổ xung vào các hồ sơ bị loại đợt 1.
Cơ cấu diện tích căn hộ: 69,9 - 76,8 - 87,9m2
Điều kiện mua căn hộ NHS Trung Văn anh chị tham khảo nội dung chi tiết bên dưới
NHS Trung Văn có giá bán 19,5tr/m2 và giá thuê là 99,000đồng/m2 là một giá rất tốt để có sở hữu căn hộ trung tâm quận Nam Từ Liêm.
- Thời gian tiếp nhận hồ sơ đợt 1: từ 28/3-11/5/2023 ( Sáng từ 8h30 - 11h30, Chiều từ 13h30 - 16h30).
- Thời gian ký hợp đồng mua, thuê căn hộ: Quý I và III/2023
- Thời gian bàn giao căn hộ: Quý I/2025
Nhà ở xã hội NHS Trung Văn được xây dựng lên với mục đích cung cấp những căn hộ với mức giá thành rẻ, hợp lý phù hợp với một số lượng người lao động có mức thu nhập thấp, hoặc trung bình. Vì lý do đó, nhà ở xã hội NHS Trung Văn cũng có một số quy định dành riêng để giới hạn người mua, nhằm đảm bảo đúng mục đích, đúng đối tượng sử dụng.

Theo Điều 49 Luật Nhà ở 2014, có 10 đối tượng được mua nhà ở xã hội, nếu đáp ứng được các điều kiện đủ, cụ thể:
1. Người có công với cách mạng theo quy định của pháp luật về ưu đãi người có công với cách mạng;
2. Hộ gia đình nghèo và cận nghèo tại khu vực nông thôn;
3. Hộ gia đình tại khu vực nông thôn thuộc vùng thường xuyên bị ảnh hưởng bởi thiên tai, biến đổi khí hậu;
4. Người thu nhập thấp, hộ nghèo, cận nghèo tại khu vực đô thị;
5. Người lao động đang làm việc tại các doanh nghiệp trong và ngoài khu công nghiệp;
6. Sĩ quan, hạ sĩ quan nghiệp vụ, hạ sĩ quan chuyên môn kỹ thuật, quân nhân chuyên nghiệp, công nhân trong cơ quan, đơn vị thuộc công an nhân dân và quân đội nhân dân;
7. Cán bộ, công chức, viên chức theo quy định của pháp luật về cán bộ, công chức, viên chức;
8. Các đối tượng đã trả lại nhà ở công vụ theo quy định.
9. Học sinh, sinh viên các học viện, trường đại học, cao đẳng, dạy nghề; học sinh trường dân tộc nội trú công lập được sử dụng nhà ở trong thời gian học tập.
10. Hộ gia đình, cá nhân thuộc diện bị thu hồi đất và phải giải tỏa, phá dỡ nhà ở theo quy định của pháp luật mà chưa được Nhà nước bồi thường bằng nhà ở, đất ở.
• Người mua nhà ở xã hội NHS Trung Văn phải thuộc diện khó khăn về chỗ ở. Họ chưa được nhà nước giao đất theo quy định của pháp luật về đất đai. Họ phải là những người đang trong thời điểm đi thuê, mượn nhà hay ở nhờ nhà của người khác, hoặc có nhà nhưng bị nhà nước thu hồi phụ vụ cho việc giải phóng mặt bằng theo chủ trương của Đảng và Nhà nước.
• Người có nhu cầu mua nhà ở xã hội phải có hộ khẩu thường trú tại tỉnh, thành phố trực thuộc trung trương nơi có nhà ở xã hội.
• Người thu nhập thấp muốn nhà ở xã hội phải là người không thuộc diện phải nộp thuế thu nhập cá nhân thường xuyên theo quy định của pháp luật về thuế thu nhập cá nhân.
• Bên cạnh đó, việc mua nhà ở xã hội cũng áp dụng đối với những đối tượng có nhà ở thuộc quyền sở hữu của mình nhưng nhà ở chật chội, diện tích bình quân của hộ gia đình dưới 10m2/sàn/người. Hay nhà ở riêng lẻ diện tích bình quân dưới 10m2/sàn/người và diện tích khuôn viên đất thấp hơn tiêu chuẩn diện tích đất tối thiểu thuộc diện được phép cải tạo, xây dựng theo quy định của UBND cấp tỉnh nơi có nhà ở.
Từ ngày 28/3/2023 đến ngày 11/5/2023 (không bao gồm thứ 7, chủ nhật và các ngày lễ theo quy định):
– Sáng: từ 08h30 đến 11h30
– Chiều: từ 13h30 đến 16h30.
Để đảm bảo việc thu hồ sơ trật tự, chính xác và tránh việc khách hàng phải chờ đợi lâu hoặc sau khi chờ đợi mà không nộp được hồ sơ, Công ty cổ phần Đầu tư xây dựng NHS sẽ tiến hành phát số thứ tự nộp hồ sơ cho các khách hàng. Số thứ tự sẽ được phát từ đầu buổi và theo thứ tự khách hàng đến trước cho đến khi đủ số lượng khách hàngphù hợp với năng lực thu hồ sơ của bộ phận tiếp nhận. Các khách hàng không nhận được số thứ tự kính đề nghị quay lại vào buổi làm việc tiếp theo. Thời gian phát phiếu:
– Sáng: 08h15 cho đến khi hết số phiếu buổi sáng.
– Chiều: 13h15 cho đến khi hết số phiếu buổi chiều.
Địa chỉ tiếp nhận và hướng dẫn hồ sơ duy nhất tại: Văn phòng đại diện Công ty cổ phần Đầu tư xây dựng NHS, Tầng 01, nhà N09B1, KĐT mới Dịch Vọng, phường Dịch Vọng, quận Cầu Giấy, thành phố Hà Nội.
Công ty không thu hồ sơ ở bất kỳ địa điểm nào khác.
– Yêu cầu người đứng đơn (hoặc vợ/chồng) trực tiếp nộp hồ sơ, ký giấy biên nhận hồ sơ, đăng ký nguyện vọng diện tích căn hộ. Công ty không nhận hồ sơ thông qua các hình thức ủy quyền. Chỉ có 01 người được vào Công ty để nộp hồ sơ.
– Mỗi hồ sơ chỉ có 01 người được vào nộp hồ sơ.
– Trong quá trình nộp hồ sơ, kính đề nghị người nộp hồ sơ tuân thủ quy định của Công ty và giữ trật tự chung khi làm việc.
- Các Giấy tờ nộp bản sao đề nghị có chứng thực (CCCD/CMND…) trong thời hạn 06 tháng.
- Hồ sơ nộp cho Công ty phải đầy đủ theo quy định. Trong trường hợp hồ sơ không đầy đủ hoặc kê khai không chính xác, Công ty sẽ không tiếp nhận.
– Khi nộp hồ sơ đề nghị khách hàng nộp kèm theo các Giấy tờ xác nhận về đối tượng ưu tiên theo quy định. Trong trường hợp khách hàng không nộp các Giấy tờ này thì coi như hồ sơ không thuộc diện ưu tiên.
- Thời gian bôc thăm: thứ 7 ngày 20/5/2023
+ Thời gian làm thủ tục: từ 7h - 9h30
+ Thời gian bốc thăm: từ 10h30 - 12h30
- Địa điểm tổ chức lễ bốc thăm: Nhà thi đấu Cầu Giấy, số 35 Trần Quý Kiên, Cầu Giấy, Hà Nội
>>> Xem thêm: Nhà ở xã hội và những điều cần biết
Chat Zalo
Chat Facebook
google-site-verification=hg90Q844_wiZL5g9EUVvPQWAmc65rnDBQGoO_xmdDvM