Email : nhadepthudo789@gmail.com
Hotline : 0978987813
Nhà ở xã hội 393 Lĩnh Nam do Công ty TNHH Hoà Bình – Hòa Bình Group làm chủ đầu tư. Dự án với 1 tòa chung cư 35 tầng và 25 căn liền kề, tổng số 576 căn hộ. Giá bán từ 22 triệu/m2.
Hỗ trợ dự án: 0943 880 269 (call/zalo)
Zalo hỗ trợ hồ sơ thủ tục: zalo.me/84943880269

| Tên gọi: | Nhà ở xã hội 393 Lĩnh Nam |
| Chủ đầu tư: | Công ty TNHH Hoà Bình |
| Vị trí: | 393 Lĩnh Nam, phường Lĩnh Nam, Hà Nội |
| Quy Mô: | Diện tích dự án 6.616 m2 1 tòa chung cư cao 35 tầng chia làm 2 block 1 block NOXH, 1 block TM 25 căn liền kề |
| Sản phẩm: | Căn 1 phòng ngủ: 31m2 Căn 2 phòng ngủ: 52m2 Căn 3 phòng ngủ: 69.8m2 |
| Pháp lý: | sổ hồng lâu dài |
| Hiện trạng: | Chưa mở bán |
| Thời Gian: | Khởi công Quý IV/2025 Bàn giao quý IV/ 2027 |
Hỗ trợ dự án: 0943 880 269 (call/zalo)
Zalo hỗ trợ hồ sơ thủ tục: zalo.me/84943880269
**********
Nhà ở xã hội 393 Lĩnh Nam có địa chỉ tại số 393 phố Lĩnh Nam, phường Lĩnh Nam, Hà Nội. Đây là vị trí trung tâm khu vực Hoàng Mai, gần nhiều tuyến đường huyết mạch, giúp cư dân thuận tiện di chuyển đến khu vực nội thành và lân cận.

Từ 393 Lĩnh Nam, cư dân có thể nhanh chóng kết nối đến đường Vành đai 2, đường 2.3 và đường vành đai 3. Trong bán kính 3 km, có đầy đủ trường học các cấp, chợ dân sinh, bệnh viện Bạch Mai, Bệnh viện Thanh Nhàn, chợ đầu mối và trung tâm thương mại lớn, mang lại giá trị sống tiện nghi cho cư dân.
• Trường THPT Hoàng Văn Thụ: cách 500m.
• Trường THCS Vĩnh Hưng: 1km
• Trường Tiểu học Vĩnh Hưng: cách 350m
• Trường Đại học Kinh tế Kỹ thuật Công nghiệp Hà Nội: cách 800m.
• Chợ Lĩnh Nam: cách 1,1km.
• Bệnh viên Nam học: cách 1,7km.
• Hồ Vĩnh Hoàng: cách 1,7km.
Dự án Nhà ở xã hội 393 Lĩnh Nam có đầy đủ tiện ích như những chung cư thương mại khác phục vụ cho cư dân.
Đến với dự án Nhà ở xã hội 393 Lĩnh Nam, bạn sẽ quên đi cuộc sống ngột ngạt bao trùm ngày thường, và đến với một không gian thoáng đãng, một cảm giác bình yên. Ngoài đảm bảo an ninh của cư dân được đặt lên hàng đầu với hệ thống camera giám sát và đội ngũ nhân viên bảo vệ có chuyên môn túc trực 24/7.

- Tiện ích nội khu
• Siêu thị mua sắm
• Khu thể thao gym, phòng sách
• Nhà trẻ mầm non
• Phòng sinh hoạt cộng đồng
• Công viên cây xanh, cảnh quan thiên nhiên
• An ninh 3 lớp, tủ đồ cư dân

Dân cư sống tại Nhà ở xã hội 393 Lĩnh Nam có thể thoải mái tận hưởng các dịch vụ hàng đầu ngay trong chính lòng dự án. Cùng với đó có thể thừa hưởng các tiện ích ngoại khu có sẵn tại khu vực.

Nhờ vị trí đắc địa, cư dân Noxh 393 Lĩnh Nam thừa hưởng toàn bộ tiện ích sẵn có của quận Hoàng Mai: TTTM Vincom Mega Mall Times City, Aeon Mall Long Biên, các trường đại học lớn như Kinh tế Quốc dân, Bách Khoa, Xây dựng, cùng nhiều bệnh viện tuyến đầu. Điều này giúp cuộc sống của cư dân thêm phần tiện lợi.
Dự án được thiết kế với khối tòa nhà 35 tầng nổi, với 2 tầng thương mại và 2 tầng hầm. Khuôn viên dự án được quy hoạch đồng bộ, có khu sinh hoạt chung và lối đi bộ riêng biệt, tạo không gian sống an toàn. Các căn hộ để ở được bố trí từ tầng 3 tới tầng 35.
Hỗ trợ dự án: 0943 880 269 (call/zalo)
Zalo hỗ trợ hồ sơ thủ tục: zalo.me/84943880269
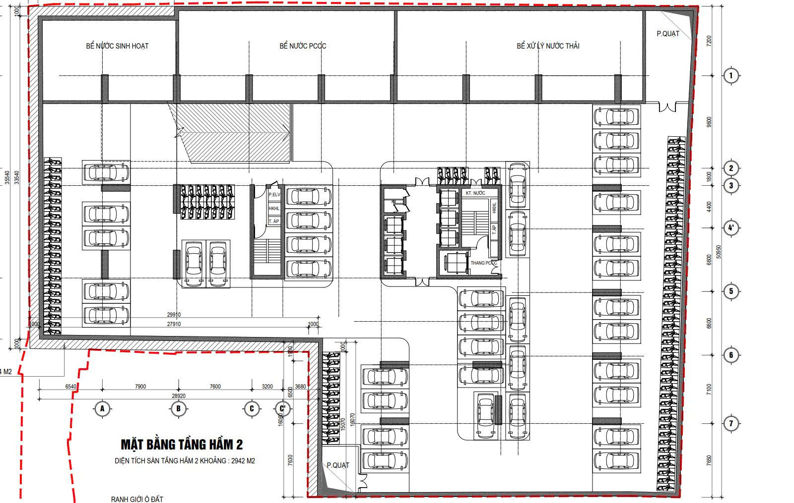
Mặt bằng nhà ở xã hội 393 Lĩnh Nam tầng hầm 2
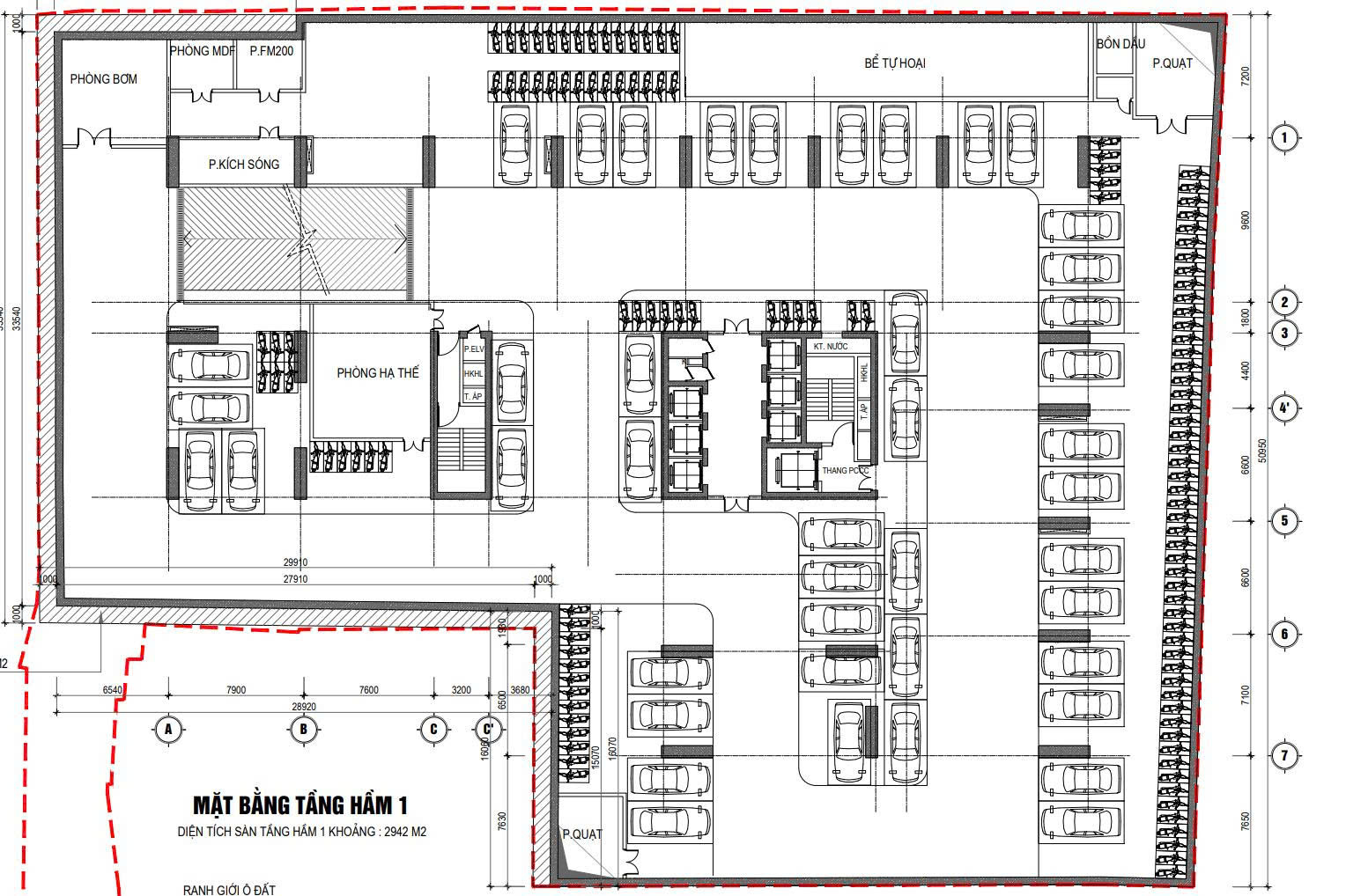
Mặt bằng nhà ở xã hội 393 Lĩnh Nam tầng hầm 1
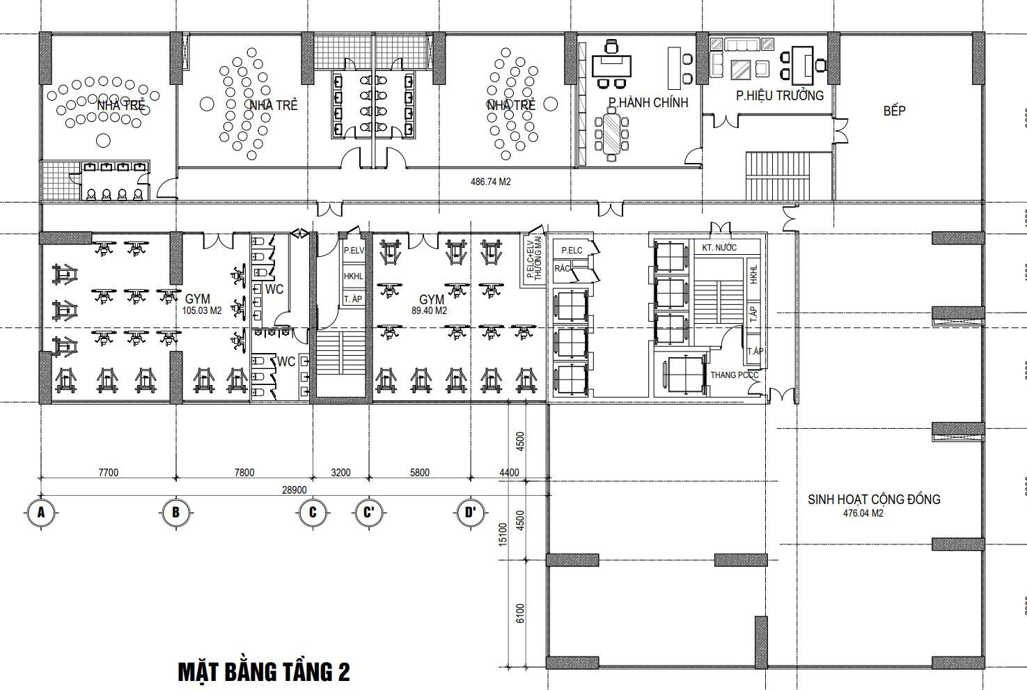
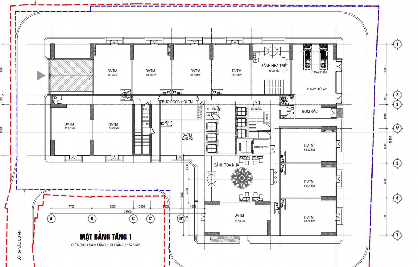
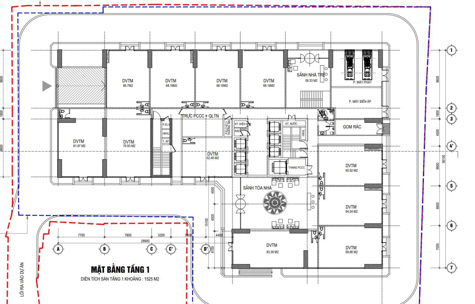
Mặt bằng nhà ở xã hội 393 Lĩnh Nam tầng 1
Các căn hộ tại 393 Lĩnh Nam có diện tích từ 39 – 70m², thiết kế từ 1 – 3 phòng ngủ, phù hợp cho gia đình trẻ hoặc hộ gia đình có 2 – 3 thế hệ.
• Căn hộ 1 phòng ngủ: diện tích 39 m2 (thông thủy)
• Căn hộ 2 phòng ngủ: diện tích 52 m2 (thông thủy)
• Căn hộ 3 phòng ngủ: diện tích 69,8 m2 (thông thủy)
Hỗ trợ dự án: 0943 880 269 (call/zalo)
Zalo hỗ trợ hồ sơ thủ tục: zalo.me/84943880269

Với thiết kế tận dụng tối đa ánh sáng và không khí từ thiên nhiên các căn hộ tại chung cư Nhà ở xã hội 393 Lĩnh Nam có không gian mở với 2 logia. Kiến trúc căn hộ được tối ưu hóa với công năng sử dụng cùng vẻ đẹp đẳng cấp, tiện nghi.
Căn hộ NOXH 393 Lĩnh Nam
Các căn hộ được thiết kế tối ưu, tiết kiệm diện tích – tạo một không gian gần gũi cho cả gia đình. Các phòng đều được thiết kế thông thoáng đảm bảo đón hướng nắng, hướng gió tự nhiên. Ban công, cửa sổ hướng ra tầm view tuyệt về hồ hay vườn hoa công viên.
Thiết kế căn hộ nhà ở xã hội 393 Lĩnh Nam
Với không gian mở, phòng khách, phòng ngủ, phòng bếp không vách ngăn, phòng vệ sinh và logia được bố trí khéo léo. Tất cả tạo ra tổng thể không gian sống tiện nghi cho các thành viên gia đình.
Bàn giao nội thất với thiết bị vệ sinh cao cấp
Nhà ở xã hội 393 Lĩnh Nam Giá bán – Cho thuê – Thuê mua (dự kiến):
• Bán: 24.000.000 đ/m² (đã gồm VAT & phí bảo trì)
• Thuê: 90.000 đ/m²/tháng
• Thuê mua: 300.000 đ/m²/tháng (thời hạn 5 năm).
(Giá chính thức sẽ được phê duyệt chính thức theo quy định, và được đăng tải chi tiết khi có hông tin chính xác).
Hỗ trợ dự án: 0943 880 269 (call/zalo)
Zalo hỗ trợ hồ sơ thủ tục: zalo.me/84943880269


Tiến Độ dự án NOXH 393 Lĩnh Nam tháng 10/2025 đang chuẩn bị mặt bằng và tiến hành thi công khoan thí nghiệm.
Nhà ở xã hội 393 Lĩnh Nam nằm trong chuỗi nhà ở xã hội chất lượng cao mà đại gia “Đường bia” đã ấp ủ đưa ra thị trường với thang máy Mitsubishi, thiết bị vệ sinh Toto mạ vàng.
Tiến Độ dự án NOXH 393 Lĩnh Nam tháng 10/2025.
Khu đất triển khai dự án NOXH 393 Lĩnh Nam.
Đối tượng đăng ký Mua/Thuê NOXH :
* Hộ khẩu Hà Nội:
1. Chưa mua NOXH bao giờ (mỗi hộ gia đình chỉ được mua 1 lần).
2. Điều kiện về cư trú: Đang sinh sống và làm việc tại địa phương đang triển khai dự án (Thể hiện bằng việc có hộ khẩu Hà Nội hoặc thường trú, tạm trú)
3. Điều kiện về thu nhập: Thuộc đối tượng không phải đóng thuế thu nhập cá nhân thường xuyên. (Thể hiện bằng HĐLĐ, xác nhận bằng mẫu 03)
4. Điều kiện về nhà ở: Chưa có nhà ở hoặc khó khăn về nhà ở, hoặc nhà ở chật chội (nhà ở chật: diện tích tối thiểu 10m2/người ) (Xác nhận bằng mẫu 03).
* Hộ khẩu tỉnh:
1. Điệu kiện cư trú: có xác nhận tạm trú, thường trú tại Hà Nội.
2. Có hợp đồng lao động trên 1 năm tại các doanh nghiệp trên địa bàn Hà Nội.
3. Giấy tờ xác nhận đóng bảo hiểm xã hội.
- Xác nhận thu nhập tại cơ quan công an cấp phường xã nơi thường/tạm trú thường trú.
- Xác nhận về đối tượng, vẫn thực hiện tại UBND phường/xã nơi đăng ký hộ khẩu hoặc tạm trú.
Chính sách mới sẽ thay thế quy định cũ (15–30 triệu đồng/tháng), mở rộng cơ hội tiếp cận NOXH cho người lao động, gia đình trẻ và công nhân viên chức tại các đô thị.
Đây là bước tiến quan trọng trong việc đảm bảo an sinh và phát triển thị trường nhà ở xã hội giai đoạn 2025–2030.
Theo dự thảo mới nhất của Bộ Xây dựng (dự kiến áp dụng từ 10/10/2025), mức thu nhập tối đa được mua hoặc thuê mua Nhà ở xã hội (NOXH) sẽ được điều chỉnh tăng, cụ thể:
- Cá nhân độc thân: ≤ 20 triệu đồng/tháng.
- Mẹ đơn thân, Bố đơn thân (có con phụ thuộc): ≤ 30 triệu đồng/tháng.
- Hai vợ chồng: ≤ 40 triệu đồng/tháng.
1. Đơn đăng kí mua NOXH (Mẫu 01).
2. Xác nhận tình trạng nhà đất (xin tại văn phòng đăng kí đất đai nơi có dự án) (Mẫu 02).
3. Xác nhận nơi cư trú Mẫu CT07.
4. Xác nhận Thu nhập do Công ty xác nhận nếu đi làm cty (Mẫu 04) hoặc do Uỷ ban Nhân dân xác nhận nếu là Lao động tự do (Mẫu 05).
5. Giấy tờ cá nhân: CCCD (nếu có gia đình thì của cả gia đình), Đăng kí kết hôn (nếu có gia đình) hoặc xác nhận tình trạng hôn nhân (nếu độc thân), giấy khai sinh (nếu có con).
6. Xác nhận đóng BHXH nếu có tham gia BHXH( tuỳ từng dự án yêu cầu) có dự án không yêu cầu đóng BHXH.
7. Xác nhận đối tượng mua NOXH ( do công ty kí đóng dấu hoặc UBND phường, xã)
8. Bảng lương có xác nhận của công ty doanh nghiệp.
9. Và một số giấy tờ ngoài lề đặc thù.
Hỗ trợ thông tin dự án: 0943 880 269 (call/zalo)
Zalo hỗ trợ hồ sơ thủ tục: zalo.me/84943880269
Chat Zalo
Chat Facebook
google-site-verification=hg90Q844_wiZL5g9EUVvPQWAmc65rnDBQGoO_xmdDvM