Email : nhadepthudo789@gmail.com
Hotline : 0978987813
LIÊN HỆ TƯ VẤN VÀ ĐẶT LỊCH XEM DỰ ÁN
HOTLINE: 0378669695
************
Felicity với ý nghĩa đó là Hạnh phúc, hạnh phúc lớn mang lại sự may mắn điều mang lại hạnh phúc. Được đặt tên gắn với miền đất yên bình đang mạnh mẽ phát triển với không gian sống xanh và tiện ích khép kín mang tên Felicity Uông Bí

Dự án Felicity Uông Bí tọa lạc tại khu vực phía Bắc sông Uông, phường Trưng Vương, thành phố Uông Bí, tỉnh Quảng Ninh. Dự án sở hữu vị trí vàng ngay trục đường quốc lộ 18 – tuyến đường huyết mạch của thành phố Uông Bí tới 4 tỉnh, thành phố: Hà Nội, Bắc Ninh, Hải Dương và Quảng Ninh.

- Phía Đông giáp Khu dân cư hiện trạng và dự án Khu dân cư của Công ty TNHH Tập đoàn Xuân Lãm.
- Phía Tây giáp dự án Khu Biệt thự sông Uông của Công ty Cổ phần Thương mại dịch vụ Uông Bí.
- Phía Nam giáp sông Uông
- Phía Bắc giáp Quốc lộ 18 và khu dân cư hiện trạng.
Là dự án tiên phong của mô hình đô thị kiểu mới ở Uông Bí, Felicity Uông Bí sở hữu vị trí đẹp hiếm hoi còn sót lại tại phường trung tâm Thành phố Uông Bí, từ dự án dễ dàng kết nối tới các công trình quan trọng của thành phố như khu trung tâm hành chính, quảng trường, sân vận động, bưu điện, trung tâm y tế, chợ trung tâm,…Ngoài ra, Felicity Uông Bí còn nằm liền kề quốc lộ 18, giúp kết nối thuận tiện tới các thành phố trọng yếu của tỉnh như: Hạ Long, Cẩm Phả, Móng Cái,… hay các tỉnh thành lân cận như Hải Phòng, Hải Dương, Bắc Ninh,…
Là mô hình khu đô thị đẳng cấp, khép kín đầu tiên tại Uông Bí, Felicity Uông Bí được thiết kế đồng bộ trong kiến trúc, cảnh quan cùng không gian xanh khoáng đạt đáng mơ ước.
Cuộc sống của cư dân Felicity Uông Bí sẽ được phục vụ bởi chuỗi tiện ích hoàn hảo, đáp ứng tối đa nhu cầu sinh hoạt hàng ngày, bao gồm: Cổng chào Khu đô thị, Nhà sinh hoạt cộng đồng, Gym ngoài trời, Khu vui chơi trẻ em, Vườn hoa, Đường hoa, Đường dạo bộ, Trường mầm non, Dịch vụ quản lý chuyên nghiệp, Dịch vụ vệ sinh, Dịch vụ chăm sóc cảnh quan, Hệ thống an ninh 24/7…

Quy hoạch và phát triển đồng bộ trên tổng diện tích khoảng 20.56 ha thuộc Phường Trưng Vương, Thành Phố Uông Bí, tỉnh Quảng Ninh, dự án Felicity Uông Bí được xây dựng trên ý tưởng một đô thị kiểu mẫu hiện đại, cộng đồng dân cư cao cấp, môi trường sống văn minh, lý tưởng với hàng loạt các tiện ích dịch vụ chất lượng như:


.jpg)
Với hơn 68% diện tích dành cho công viên cây xanh, cảnh quan và các tiện ích công cộng, Dự án Felicity Uông Bí xứng đáng là lựa chọn lý tưởng cho một chốn an cư bình yên với không gian sống xanh, tiện nghi hoàn hảo mà ai cũng muốn trở về sau những xô bồ, ồn ã của cuộc sống.
Felicity Uông Bí là khu đô thị kiểu mẫu được chủ đầu tư Công Thành đầu tư và phát triển trên khu đất tiềm năng phát triển bậc nhất TP Uông Bí với quy hoạch 579 Lô liền kề biệt thự shophouse cùng nhiều tiện ích nội khu đẳng cấp như : Vườn dạo bộ Nhật, trường học nội khu, Nhà văn hoá nội khu, Shophouse thương mại, Công viên dạo bộ.
Felicity Uông Bí được đồng bộ trong thiết kế kiến trúc và cảnh quan cho tổng thể dự án. Mọi góc cảnh quan tại dự án đều phảng phất nét đẹp đẳng cấp, thanh lịch của kiến trúc Châu Âu, trong không gian xanh khoáng đạt bao phủ toàn bộ khu đô thị.
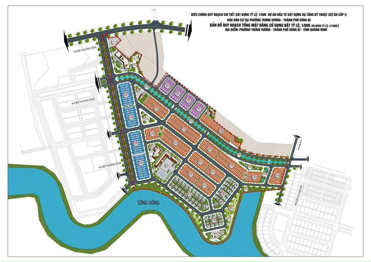
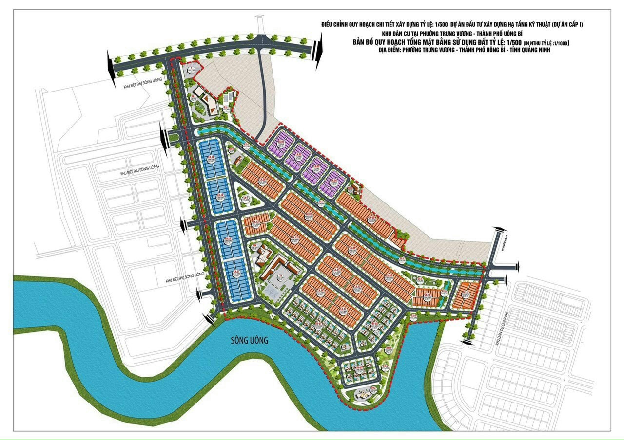
Mặt bằng phân lô dự án Felicity Uông Bí – Quảng Ninh
Cơ cấu sản phẩm dự án Felicity Uông Bí
SHOPHOUSE FELICITY UÔNG BÍ
Shophouse Felicity Uông Bí phục vụ mục đích vừa để ở vừa kinh doanh. Các căn nhà phố có vị trí tọa lạc tại trung tâm dự án, với hai mặt tiền rộng thoáng và sạch sẽ giúp nhà đầu tư tiếp cận tối đa khách hàng. Với công năng vừa ở vừa kinh doanh, nhà phố thương mại Shophouse Felicity Uông Bí được bố trí xung quanh mặt ngoài khu đô thị, là sản phẩm ấn tượng, phù hợp cho cả hoạt động kinh doanh và nghỉ ngơi thư giãn cho cư dân.

Phối cảnh shophouse dự án Felicity Uông Bí – Quảng Ninh
Liền kề Felicity Uông Bí là một trong những sản phẩm hot nhất hiện nay, diện tích từ 80 – 150 m2. Liền kề Felicity Uông Bí có giá bán hấp dẫn, phù hợp với nhiều khách hàng. Vẻ đẹp vừa tân cổ, vừa sang trọng là phong cách được hướng đến cho mỗi căn liền kề. Tại mỗi căn hộ liền kề có sự kết hợp những khoảng màu sáng tối hài hòa đem lại không gian rộng mở và thoáng đãng.
Phối cảnh liền kề dự án Felicity Uông Bí – Quảng Ninh
Biệt thự Felicity Uông Bí gồm 40 căn diện tích từ 300m2 cao 3 tầng với 5 phòng ngủ. Phía trước của mỗi căn biệt thự có đường chính qua lại vô cùng rộng lớn, lại nằm ở vị trí thuận tiện di chuyển. Hai bên đường được bài trí, sắp xếp cây xanh dọc tuyến đường nội khu. Vỉa hè rộng 4m thích hợp cho cư dân đi bộ an toàn và thư giãn.
Phối cảnh biệt thự dự án Felicity Uông Bí – Quảng Ninh
Nếu Shophouse đại diện cho nhịp sống sôi động, náo nhiệt với các hoạt động kinh doanh thương mại sầm uất từ các dãy nhà hàng, quán café, siêu thị, cửa hàng, spa, phòng khám…thì khu Biệt thự Felicity Uông Bí – Quảng Ninh lại mang đến không gian sống yên tĩnh, riêng tư, đẳng cấp và với vị trí tách biệt. Dự án hứa hẹn kiến tạo cuộc sống đẳng cấp, thượng lưu dành cho những ai yêu thích sự bình yên và tĩnh lặng nhưng vẫn không tách rời khỏi phố thị, tách rời khỏi những tiện ích cao cấp trong khu vực.
Dự án Felicity Uông Bí đang được xây dựng đúng tiến độ đề ra, chủ đầu tư đã hoàn thiện hạ tầng dự kiến sẽ bàn giao cho khách hàng vào tháng 3/2021.

Phối cảnh biệt thự dự án Felicity Uông Bí – Quảng Ninh
- Dự án duy nhất thời điểm hiện tại phân lô bán nền có pháp lý đầy đủ, rõ ràng
- Vị trí vàng ngay trục đường quốc lộ 18 tuyến đường huyết mạch của thành phố Uông Bí tới 4 tỉnh, thành phố: Hà Nội, Bắc Ninh, Hải Dương và Quảng Ninh
- Gần các khu công nghiệp Đông Mai, Amata Hạ Long
- Gần các dự án khác trên trục quốc lộ 18 như: KĐT Uông Bí, KĐT Việt Long, Central City, Sao Vàng City, KĐT mới Cầu Sến, v..vv
- Hạ tầng giao thông đầu tư bài bản:
Quốc lộ 18 mở rộng 10 làn,Nút giao Hà Nội - Hạ Long, Đường sắt 1 ray
Tuyến đường ven sông kết nối cao tốc Hạ Long Hải Phòng đến thị xã Đông Triều dài hơn 40km.

- Chỉ trong bán kính 5km tiếp cận hàng loạt các địa điểm trọng yếu về giáo dục, y tế, vui chơi giải trí: Vincom+ Uông Bí, chùa Ba Vàng, trường cấp 1 & 2 Trưng Vương, bệnh viện Đa khoa Việt Nam Thụy Điển
- Tiện ích nội khu hiện đại: trường mầm non, trường tiểu học; trung tâm thương mại, phòng tập gym, yoga, spa, thư viện và phòng sinh hoạt cộng đồng

- Uông Bí là đô thị loại 2 và là thành phố có GDP cao nhất tỉnh Quảng Ninh
TP Uông Bí là thành phố công nghiệp với các ngành khai thác khoáng sản (mỏ than Vàng Danh), nhà máy nhiệt điện Uông Bí, cảng Điền Công. Ngoài ra Uông Bí còn rất phát triển với ngành du lịch tâm linh với chùa Ba Vàng, danh thắng Yên Tử, thiền viện Trúc Lâm giúp thúc đẩy phát triển kinh tế vùng.
Cạnh dự án lớn của TNR quy mô 32,2 ha (phải xây dựng)
Giáp với khu kinh tế ven biển Quảng Yên và Dự án Hạ Long Xanh (10 tỷ USD)
Giá bán đất nền liền kề Felicity Uông Bí: Liên hệ 0378669695
Giá bán đất nền biệt thự Felicity Uông Bí: Liên hệ 0378669695
Tiến độ thanh toán dự án Felicity Uông Bí: Liên hệ 0378669695
Liên hệ trực tiếp PKD để đặt chỗ lô đợt đầu giá tốt nhất:
HOTLINE: 0378669695
Chat Zalo
Chat Facebook
google-site-verification=hg90Q844_wiZL5g9EUVvPQWAmc65rnDBQGoO_xmdDvM