Chung cư CT4 Yên Nghĩa là tòa căn hộ chung cư xây dựng cuối cùng của Dự án Khu nhà ở Bộ tư lệnh Thủ đô Hà Nội. Dự án Chung cư CT4 Yên Nghĩa có những ưu và nhược điểm như thế nào? Có nên mua căn hộ chung cư CT4 Yên Nghĩa hay không? Giá bán chung cư CT4 Yên Nghĩa là bao nhiêu?… là những câu hỏi được rất nhiều quý anh chị mua nhà quan tâm hiện nay. Cùng tham khảo bài đánh giá dưới đây của Nhà đẹp Thủ đô về dự án chung cư CT4 yên Nghĩa trước khi quyết định mua nhà nhé!
Với vị trí tọa lạc ở nơi đắc địa, thiết kế căn hộ thông minh, cùng với tiện ích đầy đủ thì dự án Chung cư CT4 Yên Nghĩa hứa hẹn sẽ là dự án bất động sản nổi bật nhất trong năm 2024.
Tên dự án: Chung cư CT4 Yên Nghĩa
Vị trí: Khu nhà ở Bộ tư lệnh Thủ đô Hà Nội , P. Yên Nghĩa, Q. Hà Đông, TP. Hà Nội
Chủ đầu tư: Tổng công ty đầu tư phát triển nhà và đô thị Bộ Quốc Phòng - MHDI
chung cư CT4 Yên Nghĩa thi công tháng 5/2025 tiến hành sơn mặt ngoài, điểm nổi bật của căn hộ là hần logia rất rộng cùng với hệ kính lớn của các phòng tạo không gian rộng thoáng
Loại hình phát triển: Tòa căn hộ chung cư
Quy mô tòa CT4: cao 22 tầng
Tổng số căn hộ: 280 căn hộ
Diện tích căn hộ:
- Căn hộ 2 phòng ngủ: 67 - 78 - 79m2
- Căn hộ 3 phòng ngủ: 88 – 100m2
Thời gian khởi công: Quý I/2023
Thời gian bàn giao: Quý II/2024
Về kết nối vùng, Chung cư CT4 Yên Nghĩa nằm giữa 2 trục đường lớn chạy qua là đường Tố Hữu và đường Quang Trung, liên thông tới các khu vực khác khá dễ dàng.
Từ chung cư CT4 Yên Nghĩa, cư dân dễ dàng kết nối vào khu vực trung tâm thành phố qua đường Tố Hữu dẫn sang Lê Văn Lương, đường Quang Trung - Nguyễn Trãi và dễ dàng để di chuyển theo các hướng qua các tuyến đường lớn như đường Lê Trọng Tấn, Lê Quang Đạo, Đại lộ Thăng Long,…
Đặc biệt, CT4 Yên Nghĩa có vị trí rất gần với các cơ sở hạ tầng lớn bao gồm: Đại học Phenikaa (500m) Hệ thống bưu chính viễn thông (1km), trung tâm hành chính Hà Đông (1,2km), bệnh viện Hà Đông (1,6km), bệnh viện Quân đội 103 (3,3km), siêu thị Metro (1,2km), siêu thị BigC (3,5km), các trường học công lập uy tín, các trường quốc tế; hệ thống giao thông công cộng,…
Vị trí chung cư CT4 Yên Nghĩa kết nối dễ dàng
Bên cạnh đó, từ chung cư CT4 Yên Nghĩa cư dân có thể di chuyển đến các tiện ích xung quanh thuộc liên kết vùng như:
- Bến Xe Yên Nghĩa khoảng 200m
- Aeon Mall Hà Đông khoảng 7 phút
- Ga Tàu Điện Yên Nghĩa 200m
- Thiên Đường Bảo Sơn khoảng 9 phút
- Bệnh Viện Quân Y 103 khoảng 13 phút
- ĐH Hà Nội khoảng 14 phút
- Trung Tâm Hội Nghị Quốc Gia khoảng 14 phút
- Tòa Tháp Văn Phòng Keangnam khoảng 16 phút
- Royal City khoảng 20 phút
- Hồ Hoàn Kiếm khoảng 40 phút
Tuy nhiên, các tuyến đường hướng tâm thường xuyên ùn tắc do đường Tố Hữu có lòng đường không lớn lại phải dành một phần đường cho tuyến xe buýt nhanh BRT. Cùng với đó, đây là tuyến đường kết nối khu vực ngoại thành với trung tâm thành phố nên vào các giờ cao điểm lúc 7h - 9h sáng và 17h - 19h tối, đoạn đường Tố Hữu, Nguyễn Trãi thường xuyên xảy ra ách tắc nghiêm trọng. Nếu anh chị sử dụng phương tiện công cộng của tuyến đường sắt trên cao Cát Linh – Hà Đông thì rất thuận tiện và thoải mái.
Về tổng thể, tòa CT4 Yên Nghĩa nằm trong khu nhà ở Bộ tư lệnh Thủ đô với mật độ xây dựng rất thấp chỉ 35%. Khu vực Hà Đông rất hiếm có khu đô thị mật độ xây dựng thấp như vậy.
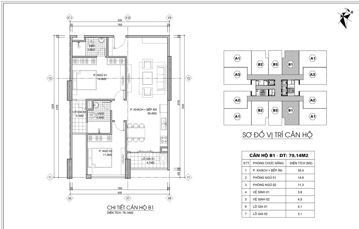
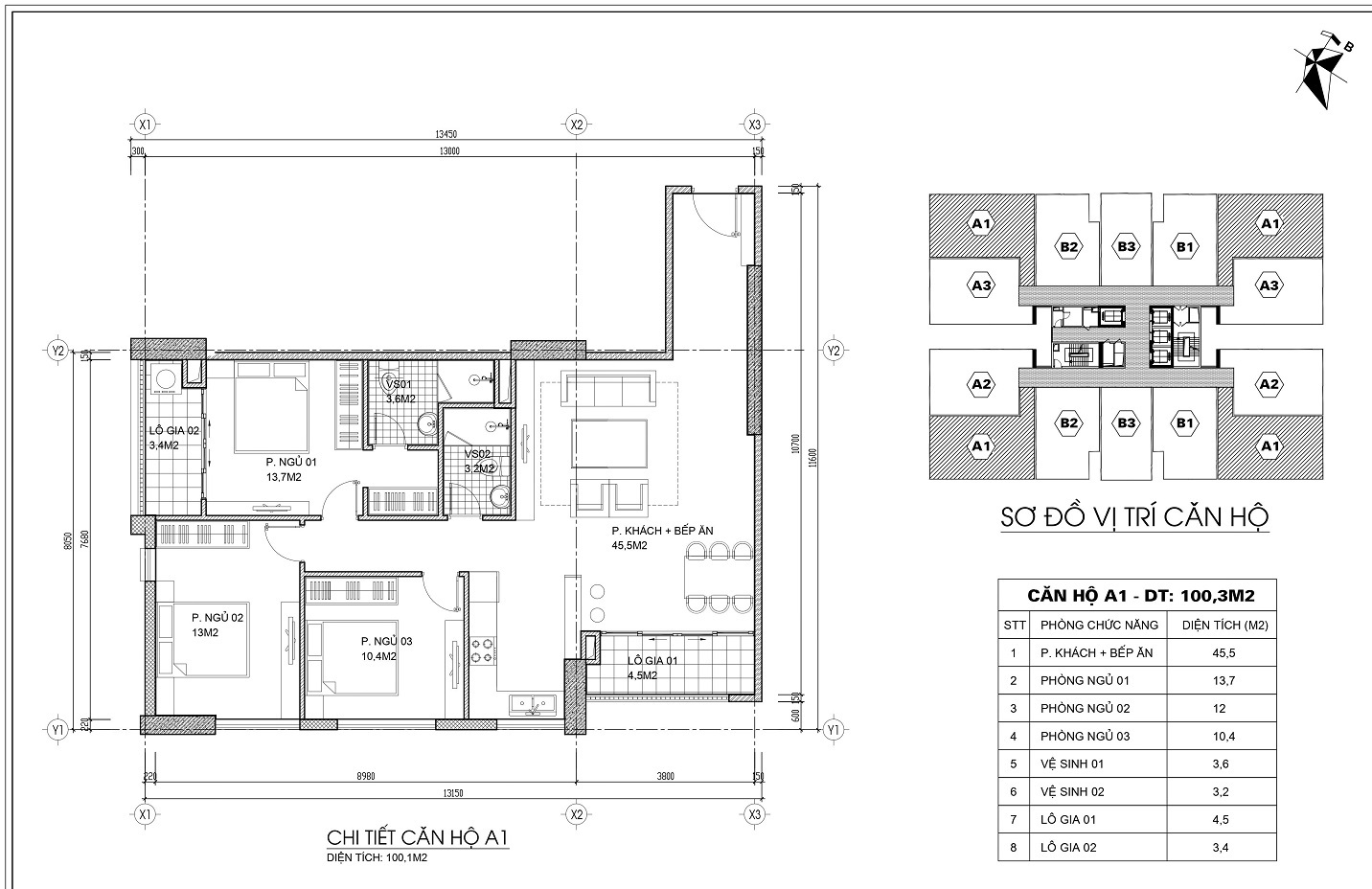
Về căn hộ, mỗi mặt sàn có 14 căn, hành lang giao thông ở giữa và 4 thang máy chất lượng cao. Có khá nhiều diện tích căn hộ cho người mua nhà lựa chọn từ 67m2 đến 100m2 (2 - 3 PN).
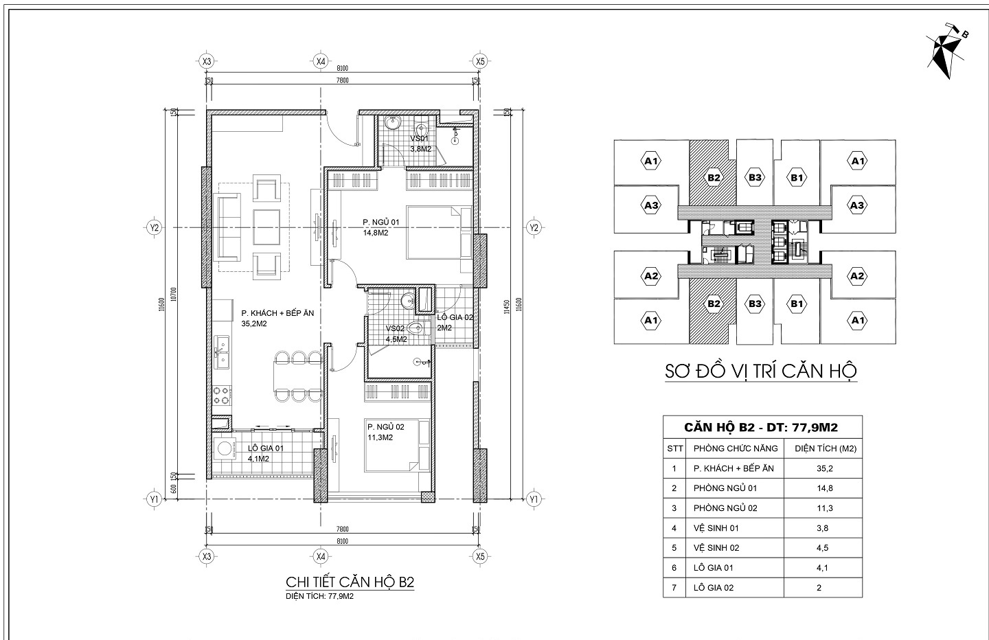
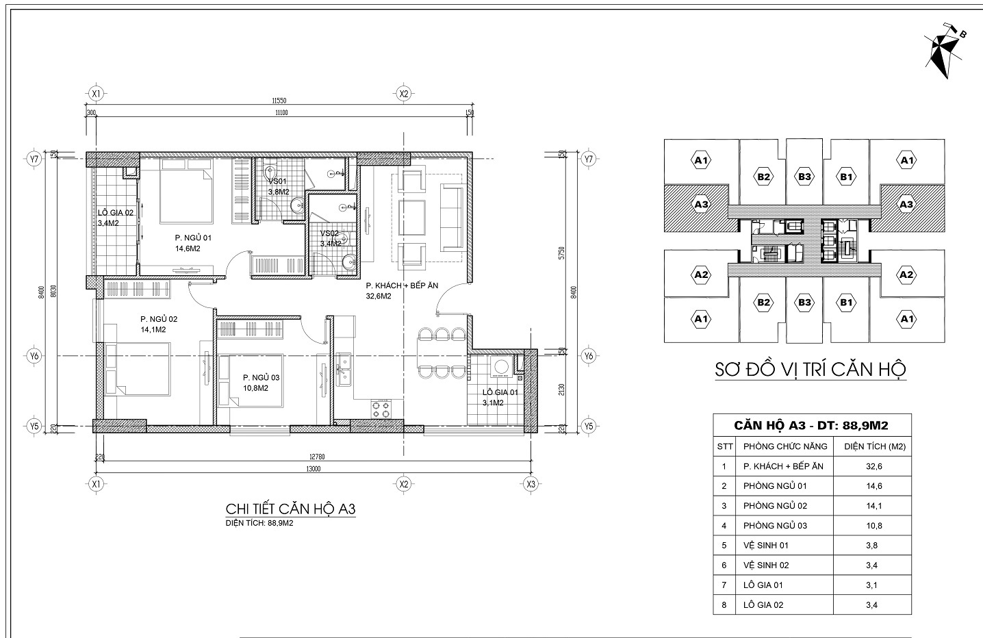
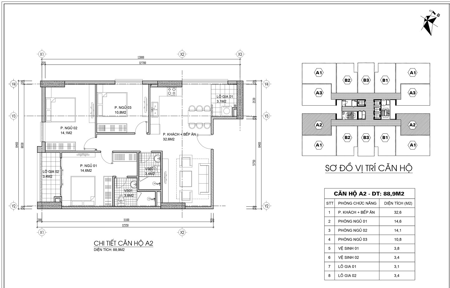
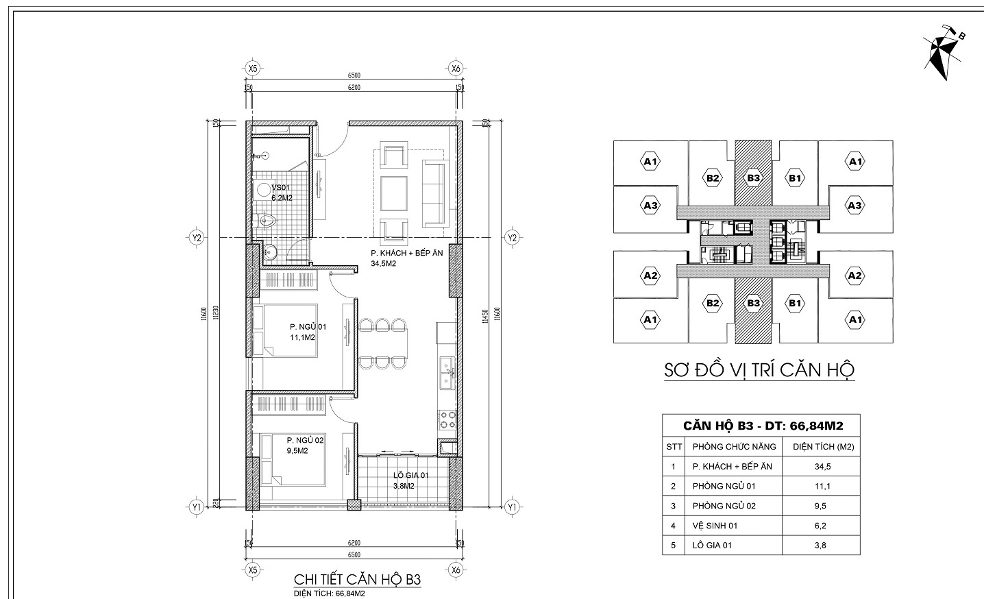
Mặt bằng căn hộ với 14 căn trên sàn
Căn hộ B3: 67m2
Căn hộ B1: 78m2
Căn hộ B2: 78m2
Căn hộ A3: 88m2
Căn hộ A2: 88m2
Căn hộ A1: 100m2
Diện tích này phù hợp với đại đa số người mong muốn sở hữu căn hộ rộng thoáng, các phòng chức năng đều có ánh sáng tự nhiên và đón nắng tự nhiên.
Là chung cư nằm trong khu nhà ở gia đình cán bộ Bộ tư lệnh thủ đô với đa phần cư dân là cán bộ công chức và dân trí cao. CT4 Yên Nghĩa nằm cạnh sư đoàn 301 với an ninh luôn trong tình trạng nâng cao và sẵn sàng khi sảy ra tình huống.
Hệ thống an ninh 24/24 của tòa nhà với 3 lớp an ninh an toàn trong ngoài rất hiệu quả.
Với mật độ xây dựng thấp, các tiện ích được bố trí rộng khắp quanh dự án:
Siêu thị: Siêu thị Winmart+ và Eco Mart nằm tại các căn liền kề chung cư CT4 và kiot của dự án, cung cấp các thực phẩm sạch như trái cây tươi, rau củ, thực phẩm tươi sống cùng loạt đồ gia dụng, đồ ăn vặt, mỹ phẩm,... với số lượng hàng lớn, đảm bảo nhu cầu cho cư dân dự án.
Vườn hoa nội khu: Vườn hoa nội khu nằm giữa các tòa căn hộ của Khu nhà ở Bộ tư lệnh Thủ đô với diện tích rộng. Không gian cây lớn, thảm cỏ xanh mướt, đường dạo bộ, ghế nghỉ chân mang đến không gian nghỉ ngơi, thư giãn cho cư dân. Ngoài ra, vườn cây nội khu còn có tác dụng thanh lọc không khí và cung cấp bầu không khí trong lành, thoáng mát cho không gian.
Vườn hoa, cây xanh dọc khắp dự án
Nhà trẻ: Nhà trẻ nội khu dự án được xây dựng 3 tầng hiện đại với các phòng khu chức năng đầy đủ,đảm bảo cho vui chơi và học tập của các con.
Nhà trẻ hiện đại trong nội khu
Trường mầm non nội khu hiện đại
Khu vực nội khu và ở gần có khá nhiều tiện ích, điểm vui chơi, ăn uống thú vị: nhà hàng, quán ăn, cafe, dịch vụ sửa chữa, quán gà Mạnh Hoạch, Dê Ngon, Lẩu nướng, Phở bún, Trâu Ngon Quán, Bể bơi, trường học các cấp… Nhìn chung tiện ích tương đối đầy đủ nhưng chưa thực sự đa dạng.
Phí bảo trì: 2% giá bán căn hộ trước VAT (chỉ đóng 1 lần duy nhất trước khi nhận nhà)
Phí dịch vụ: 3.000đ/m2/tháng (gồm dọn vệ sinh, thiết bị chiếu sáng công cộng, bảo vệ an ninh… và chưa bao gồm phí gửi xe)
Phí gửi xe:
• Ô tô: 800.000 - 1.000.000đ/xe/tháng
• Xe máy: 60.000 - 80.000đ/xe/tháng
Danh mục nội thất bàn giao căn hộ từ chủ đầu tư MHDI gồm:
• Hệ thống cửa và phụ kiện
• Trần thạch cao, bả, sơn lót, sơn phủ
• Tường sơn màu sáng
• Phòng vệ sinh lắp trần thạch cao chống thấm, tường và sàn ốp gạch Ceramic hoặc Porcelain loại A1
• Thiết bị vệ sinh toàn bộ các phòng
• Thiết bị điện chiếu sáng và đầu chờ các thiết bị điện
Chung cư CT4 Yên Nghĩa với căn hộ tràn ngập ánh sáng
MHDI trải qua hơn 30 năm xây dựng và phát triển, được sự quan tâm, giúp đỡ của lãnh đạo Bộ Quốc phòng, Học viện Kỹ thuật Quân sự, Tổng cục Chính trị, Tổng cục Hậu cần, Thành phố Hà Nội, các tỉnh thành trên cả nước, phát huy truyền thống vàh thần trách nhiệm cao của toàn thể cán bộ, nhân viên, người lao động qua các thời kỳ, Tổng công ty đã có những bước phát triển mạnh mẽ cả về quy mô hoạt động, chất lượng dịch vụ, là doanh nghiệp giữ vững vị trí hàng đầu trong thực hiện chính sách nhà ở cho cán bộ Quân đội nhiều năm qua.
Một số dự lớn do MHDI đầu tư phát triển có thể kể đến như Khu đô thị Hoàng Văn Thụ, quận Hoàng Mai quy mô 28,2 ha, vốn đầu tư 2.368 tỷ đồng; Khu đô thị Uy Nỗ, huyện Đông Anh với quy mô 44,2 ha, vốn đầu tư 4.000 tỷ đồng, Khu đô thị mới Tiến Xuân, huyện Thạch Thất rộng 43 ha, vốn đầu tư 2.346 tỷ đồng; tòa nhà văn phòng và dịch vụ thương mại trong Khu đô thị mới Cầu Giấy 4.160 m2, vốn đầu tư hơn 500 tỷ đồng.
Khu đô thị Mỹ Đình I là một trong những KĐT đầu tiên của Hà Nội
- Ngoài các dự án dân dụng, MHDI còn là nhà đầu tư nhiều công trình nhà ở phục vụ các lực lượng trong quân đội như Khu nhà ở gia đình quân đội tại Khu đô thị Nam Hồ Linh Đàm 2.330 tỷ đồng ( MHDI Linh Đàm) ; Khu nhà ở Bộ tư lệnh Thủ đô hơn 1.475 tỷ đồng, Khu nhà ở gia đình cán bộ sỹ quan vùng 4, Quân chủng Hải quân tại Khánh Hòa quy mô 800 tỷ đồng ( MHDI Cam Ranh 1) ; Khu nhà ở gia đình cán bộ quân đội 2.802 tỷ đồng nằm trong Khu du lịch Bắc bán đảo Cam Ranh ( MHDI Cam Ranh 2),...
| Tên Dự án | Vị Trí | Giá bán (triệu/m2) |
| Chung cư The Terra An Hưng | Đường Tố Hữu | 48 - 54 |
| Chung cư Usilk Văn Khê | KĐT Văn Khê | 38 - 42 |
| Chung cư Anland Premium 2 | KĐT Dương Nội | 51 - 56 |
| Chung cư The Pride | La Khê | 39 - 43 |
| Chung cư HPC Landmark 105 | 105 Tố Hữu | 39 - 45 |
| Chung cư Bid Residence | Nguyễn Thanh Bình | 24 - 28 |
| Chung cư Goldsilk City | KĐT Văn Khê | 41 - 43 |
| The Charm An Hưng | đường Tố Hữu | 48 - 53 |
| Chung cư Xuân Mai Complex | phố Nguyễn Trác | 44 - 48 |
| Chung cư CT4 Yên Nghĩa | Khu nhà ở Bộ tư lệnh | 35 - 39 |
Qua những tổng hợp và phân tích từ Nhà đẹp Thủ đô trên đây anh chị đã có thể hình dung cho mình những ưu điểm và hạn chế của dự án Chung cư CT4 Yên Nghĩa. Cảm ơn sự đồng hành và quan tâm của quý anh chị, chúc anh chị sớm chọn được căn hộ ưng ý cho tổ ấm của mình. Nhà đẹp Thủ đô rất hân hạnh được tư vấn miễn phí anh chị qua số Hotline: 0967 662 982
Ngày 10/10/2023 chung cư CT4 Yên Nghĩa thi công các hạng mục tầng 9 và đổ sàn tầng 10
Tiến độ CT4 Yên Nghĩa 12/9/2024 dự án đã hoàn thiện sơn trong ngoài tòa nhà. Công tác lắp đặt thiết bị nội thất, hệ thống điện, nước đã hoàn thiện. Hạ tầng sân chung cư đang được dọn dẹp và đổ nền. Tiến độ xây dựng chung cư CT4 Yên Nghĩa đạt 99%.

Lợi dụng việc chủ đầu tư MHDI vẫn còn một số ít quỹ căn chưa bán một số cá nhân và pháp nhân lạ đã tiến hành nhận đặt cọc khách hàng với số tiền lớn từ 30-50% số tiền căn hộ có dấu hiệu huy động vốn trái phép.

Chi tiết cảnh báo lừa đảo CT4 Yên Nghĩa từ Chủ đầu tư: CẢNH BÁO GIẢ MẠO, LỪA ĐẢO KHÁCH HÀNG anh chị đọc chi tiết.
Chủ đầu tư cảnh báo khách hàng tìm hiểu kĩ thông tin trước khi đặt cọc mua bán tại chung cư CT4 Yên Nghĩa.
Hỗ Trợ Dự Án CT4 Yên Nghĩa
Hotline: 0967 662 982
Rất nhiều khách hàng mong chờ nhà ở xã hội Handico Riverside X2 Trần Phú mở bán. Vậy hồ sơ và đối tượng nào được mua và thuê tại dự án?
Hà Nội chủ trương đầu tư 2 dự án nhóm A gồm: Dự án đầu tư xây dựng cầu Tứ Liên và cầu Trần Hưng Đạo trong năm 2025. Tiến độ cầu Tứ Liên được cập nhật mới nhất 2025 tại đây.
Cầu Long Biên (Hà Nội) đang trong đợt sửa chữa đột xuất trong thời gian 2 tháng từ ngày 28/3 – tháng 27/5/2026. Hà Nội sẽ tạm dừng toàn bộ phương tiện lưu thông để đại tu mặt đường và hệ thống lan can đã xuống cấp.
Có nên mua chung cư Eurowindow River Park? Đó là câu hỏi mà rất nhiều anh chị tham khảo mua nhà muốn có lời giải đáp. Bài viết sau đây của Nhà đẹp Thủ Đô sẽ giúp anh chị có câu trả lời.
Xuất hiện trên thị trường, dự án chung cư X2 Đại Kim đang thu hút sự quan tâm của nhiều khách hàng. Đây thực sự là dự án được chờ đợi bậc nhất tại Hà Nội và khách hàng đang đếm từng ngày tới thời gian mở bán chung X2 Đại Kim chính thức, để nắm bắt trong tay cơ hội sở hữu một căn hộ tiện nghi,...
Dự án X2 Đại Kim bàn giao tháng 11/2022 cho cư dân về ở. Chung cư X2 Đại Kim là nhà ở thương mại phục vụ tái sinh với giá bán ưu đãi chỉ từ 30-35tr/m2. Với vị trí đắc địa, các dòng sản phẩm đa diện tích, tiêu chuẩn bàn giao nội thất cơ bản, đủ tiện nghi và được công khai minh bạch...
Chắc chắn chúng tôi đã nghe rất nhiều câu hỏi về vấn đề: " có nên mua chung X2 Đại Kim không?" hay là "Dự án X2 Đại Kim có đáng tin cậy không?", "Chủ đầu tư X2 Đại Kim là ai?", "Chung cư X2 Đại Kim lừa...
Một thế hệ cư dân đang lặng lẽ rời khỏi phố thị ồn ã để tìm đến những miền sống an yên hơn, nơi Thung lũng Thanh Xuân Valley với thiên nhiên trong lành, nhịp sống đủ chậm và con người dành thời gian nhiều hơn cho chính mình. Và dưới đây là những điều đặc biệt tại Thanh Xuân Valley Vĩnh...
Khu đô thị MHDI Cam Ranh ( Khu nhà ở cán bộ vùng 4 Quân chủng Hải quân) do chủ đầu tư MHDI phát triển tại Bãi Dài Cam Ranh, Khánh Hòa được đánh giá cao về tiềm năng phát triển và chất lượng sống. Dự án được quy hoạch theo mô hình khu đô thị sinh thái, tích hợp nhiều tiện ích...
Chat Zalo
Chat Facebook
google-site-verification=hg90Q844_wiZL5g9EUVvPQWAmc65rnDBQGoO_xmdDvM