Chung cư CT3 Nghĩa Đô là dự án chung cư phân khúc trung cấp hiếm hoi được giới thiệu trên thị trường thời gian gần đây trên địa bàn quận Cầu Giấy. Dự án có thực sự là không gian sống lý tưởng cho cư dân? Có nên mua căn hộ chung cư CT3 Nghĩa Đô hay không? Giá bán chung cư CT3 Nghĩa Đô là bao nhiêu?… là những câu hỏi được rất nhiều quý anh chị mua nhà quan tâm hiện nay. Cùng tham khảo bài đánh giá dưới đây của Nhà đẹp Thủ đô về dự án chung cư CT3 Nghĩa Đô trước khi quyết định mua nhà nhé!
Tòa CT3 Nghĩa Đô nằm trong Khu đô thị Nghĩa Đô thuộc địa giới hành chính phường Cổ Nhuế 1, quận Bắc Từ Liêm, Hà Nội.
Dự án chỉ cách đường Hoàng Quốc Việt 5 phút đi bộ và 10 phút tới Hồ Tây. Bên cạnh đó, dự án chung cư CT3 Nghĩa Đô còn được kết nối trực tiếp với hệ thống hạ tầng giao thông hiện đại của thành phố khi chỉ 25 phút tới sân bay quốc tế Nội Bài, 20 phút tới trung tâm Hà Nội và các trung tâm hành chính khác.
Vị trí trung tâm kết nối thuận tiện của CT3 Nghĩa Đô
Nằm trong khu trung tâm hành chính mới của Thủ đô, nơi có 8 Bộ và cơ quan Chính phủ đặt trụ sở chính, và ngay tại khu biệt thự siêu sang Starlake, chung cư CT3 Nghĩa Đô là nơi bạn có thể tìm thấy một giá trị sống mới giữa điểm hội tụ của các hoạt động văn hóa, kinh tế và hành chính.
Di chuyển hướng ngõ 106 Hoàng Quốc Việt vào dự án với nhiều tiểu thương buôn bán nên lưu lượng giao thông rất đông đúc. Tình trạng tắc đường là khó tránh khỏi với một số thời điểm trong ngày. Nhưng chung cư CT3 Nghĩa Đô cũng được coi là một trong số ít dự án có quỹ đất nội đô, gần như là chung cư cuối cùng mở bán trong năm 2023 ở khu vực Cầu Giấy.
Vị trí kết nối thuận tiện chung cư CT3 Nghĩa Đô
Do nằm ở vị trí trung tâm của quận Cầu Giấy nên xung quanh dự án đã hình thành đầy đủ hàng loạt hệ thống tiện ích hạ tầng xã hội phát triển hoàn chỉnh. Xung quanh dự án là rất nhiều trường học và bệnh viện, bảo tàng. Cụ thể, ngay bên cạnh tòa nhà dự án là trường học từ cấp tiểu học, trung học Everest School. Trong bán kính chưa tới 1km là trường The Deway School Tây Hồ tây, trường cấp 1 cấp 2 Nghĩa Đô và cả Học viện kĩ thuật quân sự. Chỉ cần 500m là có thể di chuyển tới bệnh viện E. Đi chợ và mua sắm cư dân có thể di chuyển tới chợ Nghĩa Tân hay siêu thị Metro trong chưa đầy 500m. Bảo tàng Tăng- Thiết giáp và bảo tàng Thiên nhiên Việt Nam trong bán kính 800m.
Quy mô dự án CT3 Nghĩa Đô với 21 tầng, 02 tầng hầm, 02 tầng thương mại, khuôn viên cây xanh nội khu. Với mật độ xây dựng của dự án chỉ khoảng 33,4% - một mật độ rất thoáng với các dự án nội đô. Đây là một dự án căn hộ mới mật độ cây xanh cao cùng chuỗi tiện ích dịch vụ trung tâm thương mại, bể bơi, sân thể thao, vườn hoa rộng nội khu.
Chung cư CT3 Nghĩa Đô với không gian xanh, mật độ xây dựng thấp
Dự án có tổng cộng 380 căn chung cư sở hữu lâu dài với diện tích dao động từ 43 – 69m2 cho căn hộ 1 và 2 phòng ngủ. Với diện tích căn hộ đa dạng sẽ rất phù hợp với mọi nhu cầu của khách hàng, những căn nhỏ phù hợp với gia đình trẻ và gia đình có ít thành viên.
Một điểm đáng chú ý là các căn hộ có chiều cao trần rơi vào khoảng 3,2m Đây là một chiều cao lý tưởng, tạo sự thoáng đãng, rộng rãi cho không gian sống. Các không gian chức năng được bố trí khoa học dễ sử dụng và di chuyển kết nối giữa các thành viên trong gia đình.
Không gian căn hộ tràn ngập ánh sáng tự nhiên
Mặt bằng Chung cư CT3 Nghĩa Đô được trau chuốt từng chi tiết nhỏ, đặc biệt trong khâu thiết kế góc cạnh cho bố trí nội thất. Các căn hộ được thiết kế thông minh, hiện đại, đảm bảo tất cả các phòng ngủ đều thông thoáng, có ánh sáng tự nhiên.
Điểm trừ là dự án không có các căn diện tích rộng trên 70m2 nên những cư dân muốn sở hữu căn hộ diện tích rộng sẽ khó lựa chọn tại dự án này.
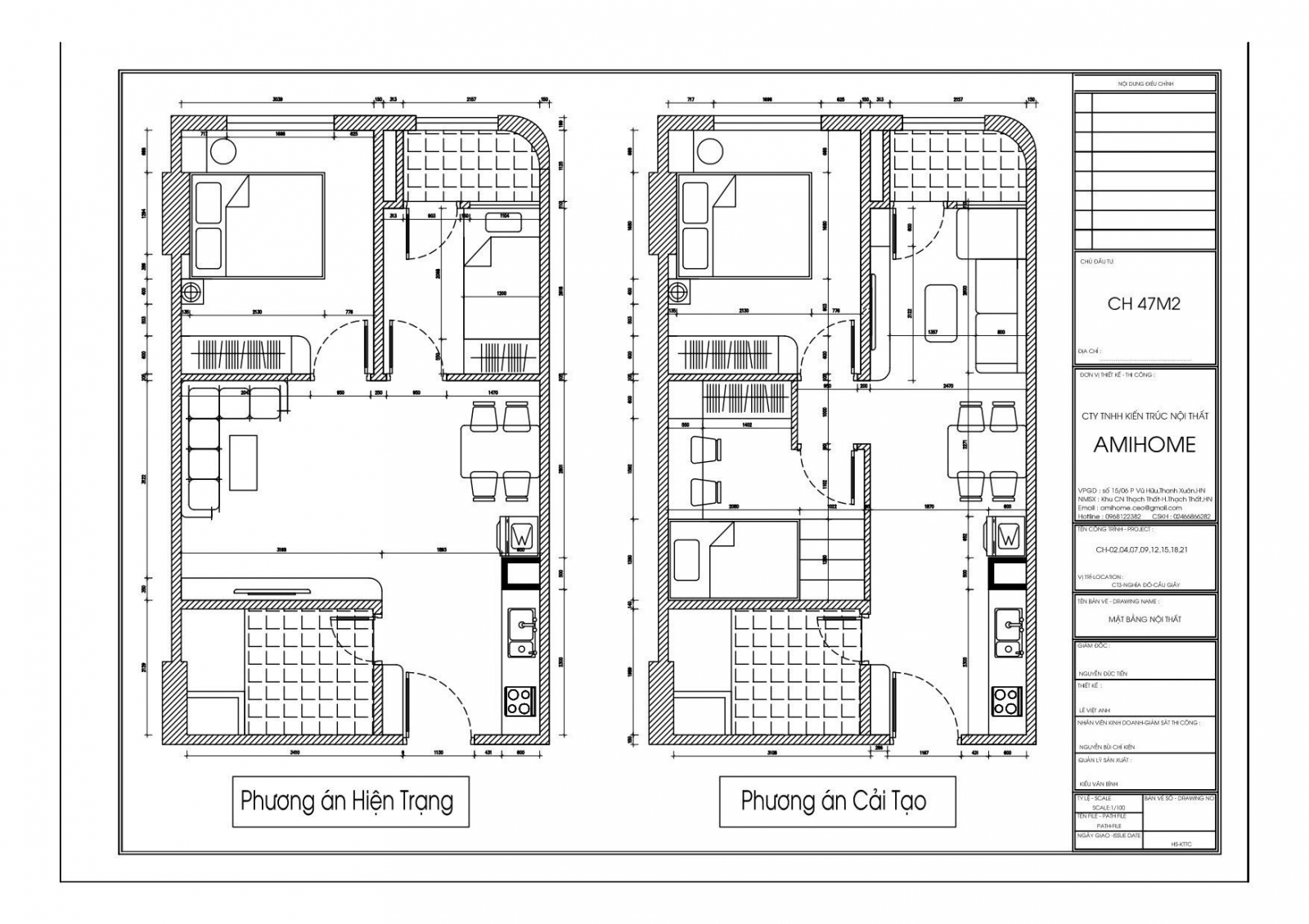
Tuy nhiên trong thiết kế, diện tích căn hộ 47m2 của chung cư CT3 Nghĩa Đô có nhược điểm là khi 2 phòng ngủ khi đóng cửa thì phòng khách sẽ không có ánh sáng tự nhiên, căn phòng trở nên khá bí bách. Cùng với đó là phòng ngủ nhỏ có diện tích chỉ dao động 6m2 khiến việc bố trí các đồ dùng trở nên thiếu không gian. Vậy nên việc cải tạo lại một phần căn hộ sẽ giúp cho không gian phòng khách và phòng ngủ được bố trí khoa học và tràn ngập ánh sáng tự nhiên.
Phương án cải tạo căn 47m2 khiến căn hộ thông thoáng hơn (AMI HOME)



Bố trí nội thất chức năng các căn hộ chung cư CT3 Nghĩa Đô
Theo tìm hiểu của Nhà đẹp Thủ đô về giá thành, giá bán theo m2 của chung cư CT3 Nghĩa Đô chỉ dao động trong khoảng 38 - 40 triệu đồng (43-69m2). Với căn hộ 1 phòng ngủ, giá bán chỉ khoảng 1,7 tỷ đồng. Với căn hộ 2 phòng ngủ giá bán sẽ chỉ khoảng 1,8 tỷ đồng.
So về giá cả, giá bán của chung cư CT3 Nghĩa Đô đang rất hợp lí so với các tòa nội khu Khu đô thị Nghĩa Đô và những dự án lân cận khác như: chung cư Starlake dao động từ 80-85 triệu/m2 ( diện tích 91-155m2). Căn hộ An Bình City có giá từ 38 triệu/m2 (74-120m2) hay căn hộ Sunshine City có giá từ 45 triệu/m2.

Với vị trí tọa lạc ở nơi đắc địa, thiết kế căn hộ thông minh, cùng với tiện ích đầy đủ thì dự án Chung cư CT3 Nghĩa Đô hứa hẹn sẽ là dự án bất động sản nổi bật nhất trong năm 2023 của quận Cầu Giấy.
Với mật độ xây dựng thấp, các tiện ích được bố trí rộng khắp quanh dự án:
Siêu thị: Siêu thị Winmart+ và Eco Mart nằm tại các căn liền kề và sàn thương mại của dự án, cung cấp các thực phẩm sạch như trái cây tươi, rau củ, thực phẩm tươi sống cùng loạt đồ gia dụng, đồ ăn vặt, mỹ phẩm,... với số lượng hàng lớn, đảm bảo nhu cầu cho cư dân dự án.
Vườn hoa nội khu: Vườn hoa nội khu nằm trọn vẹn quanh tòa CT3 diện tích rộng. Không gian cây lớn, thảm cỏ xanh mướt, đường dạo bộ, ghế nghỉ chân mang đến không gian nghỉ ngơi, thư giãn cho cư dân. Ngoài ra, vườn cây nội khu còn có tác dụng thanh lọc không khí và cung cấp bầu không khí trong lành, thoáng mát cho không gian.
Sân chơi nội khu nơi con trẻ vui đùa
Với những cư dân đam mê thể dục thể thao thì CT3 Nghĩa Đô là sự lựa chọn tuyệt vời: với hệ thống dụng cụ thể thao, sân tập được bố trí khoa học, cư dân sẽ thỏa được niềm đam mê rèn luyện thể chất của mình
Cư dân dự án chung cư CT3 Nghĩa Đô sẽ được thừa hưởng toàn bộ hệ thống tiện ích từ những khu vực xung quanh như các khu siêu thị, trung tâm thương mại: Metro, Parkson, The Garden, Lotter Center, BigC; các trường quốc tế: UNIS, SIS, HIS, VAS, Hanoi Academy; hay các trường học hàng đầu Thủ đô như Đại học Quốc Gia Hà Nội, Học viện Tài chính, Đại học Cảnh sát, Học viện Báo chí & Tuyên truyền, ĐH sư phạm, Học viện kỹ thuật quân sự; các khu vui chơi giải trí như Công viên Hòa Bình, Công viên Hữu Nghị, Công viên nước Hồ Tây, Câu lạc bộ du thuyền Hồ Tây, Nhà thi đấu Cầu Giấy, Trung tâm thể dục thể thao Hồ Tây, Sân vận động Mỹ Đình…
+ Siêu thị Metro Bệnh viện E, công viên Nghĩa Đô.
+ Sân bay quốc tế Nội Bài, Trung tâm hội nghị Quốc gia.
+ Tòa chung cư Bộ công an phường Cổ Nhuế, trường Cao đẳng y dược.
+ Bảo tàng Dân tộc học Việt Nam, trường Đại học Khoa học và Công nghệ Hà Nội
+ Học viện Công nghệ Bưu chính Viễn thông, trường tiểu học Nghĩa Đô.
+ Học viện Kỹ thuật Quân sự, bến xe Nam Thăng Long.
+ Chợ Bưởi, sân bóng đá, học viện quốc phòng.
+ Trường mầm non tuổi hoa, trường Cao đẳng Công thương Việt Nam
+ Trường Cao đẳng Du lịch Hà Nội, trường Đại học Điện Lực.
+ Trường Tiểu học Nghĩa Tân, công viên nghĩa đô Hà Nội.
+ Trung tâm nhiệt đới Việt Nga, công an quận Cầu Giấy.
CT3 Nghĩa Đô được thừa hưởng các tiện ích khu vực
Chung cư CT3 Nghĩa Đô là dự án nhà ở Thương mại phục vụ Tái định cư có chất lượng rất tốt do Công ty Cổ phần Đầu tư và Xây dựng Số 1 Hà Nội (HICC1)nay là Eurowindow Holding. Tháng 9/2024 Chủ đầu tư đang thực hiện các thủ tục cuối để chuẩn bị cho công tác thu hồ sơ làm sổ đỏ cho cư dân trong năm 2024.
Nhà Đẹp Thủ Đô tổng kết 5 Lý do bạn nên lựa chọn căn hộ tại tòa tháp CT3 Nghĩa Đô
1. Chung cư CT3 Nghĩa Đô ngay cạnh khu đô thị StarLake và khu Tây Hồ, khu ban ngành chính phủ nên thừa hưởng tiện ích cao cấp giúp cho cư dân trải nghiệm cuộc sống tiện nghi nhất
2. Chủ đầu tư dự án là Công ty Cổ phần Đầu tư và Xây dựng Số 1 Hà Nội (HICC1) cực kỳ uy tín là một trong những công ty có kinh nghiệm lâu năm trong lĩnh vực đầu tư nhiều năm nay. Từ đó mà pháp lí của tòa CT3 rất tốt khi người dân về nhận nhà có thể nhận sổ hồng căn hộ ngay sau đó.
3. Tòa tháp CT3 Nghĩa Đô Cầu Giấy được thiết kế đa dạng diện tích, căn hộ vuông vắn, tối ưu không gian sử dụng.
4. Hệ thống tiện ích nội khu đô thị Nghĩa Đô đa dạng về thương mại, văn hóa, y tế, giải trí, dịch vụ, giáo dục,...
5. Vị trí đắt giá tại ngay khu vực Cầu Giấy, có hạ tầng giao thông phát triển, thuận lợi di chuyển tới bất cứ đâu.
Qua những tổng hợp và phân tích từ Nhà đẹp Thủ đô trên đây anh chị đã có thể hình dung cho mình những ưu điểm và hạn chế của dự án Chung cư CT3 Nghĩa Đô. Cảm ơn sự đồng hành và quan tâm của quý anh chị, chúc anh chị sớm chọn được căn hộ ưng ý cho tổ ấm của mình.
Hỗ trợ dự án: 0967 662 982
Rất nhiều khách hàng mong chờ nhà ở xã hội Handico Riverside X2 Trần Phú mở bán. Vậy hồ sơ và đối tượng nào được mua và thuê tại dự án?
Hà Nội chủ trương đầu tư 2 dự án nhóm A gồm: Dự án đầu tư xây dựng cầu Tứ Liên và cầu Trần Hưng Đạo trong năm 2025. Tiến độ cầu Tứ Liên được cập nhật mới nhất 2025 tại đây.
Cầu Long Biên (Hà Nội) đang trong đợt sửa chữa đột xuất trong thời gian 2 tháng từ ngày 28/3 – tháng 27/5/2026. Hà Nội sẽ tạm dừng toàn bộ phương tiện lưu thông để đại tu mặt đường và hệ thống lan can đã xuống cấp.
Có nên mua chung cư Eurowindow River Park? Đó là câu hỏi mà rất nhiều anh chị tham khảo mua nhà muốn có lời giải đáp. Bài viết sau đây của Nhà đẹp Thủ Đô sẽ giúp anh chị có câu trả lời.
Xuất hiện trên thị trường, dự án chung cư X2 Đại Kim đang thu hút sự quan tâm của nhiều khách hàng. Đây thực sự là dự án được chờ đợi bậc nhất tại Hà Nội và khách hàng đang đếm từng ngày tới thời gian mở bán chung X2 Đại Kim chính thức, để nắm bắt trong tay cơ hội sở hữu một căn hộ tiện nghi,...
Dự án X2 Đại Kim bàn giao tháng 11/2022 cho cư dân về ở. Chung cư X2 Đại Kim là nhà ở thương mại phục vụ tái sinh với giá bán ưu đãi chỉ từ 30-35tr/m2. Với vị trí đắc địa, các dòng sản phẩm đa diện tích, tiêu chuẩn bàn giao nội thất cơ bản, đủ tiện nghi và được công khai minh bạch...
Chắc chắn chúng tôi đã nghe rất nhiều câu hỏi về vấn đề: " có nên mua chung X2 Đại Kim không?" hay là "Dự án X2 Đại Kim có đáng tin cậy không?", "Chủ đầu tư X2 Đại Kim là ai?", "Chung cư X2 Đại Kim lừa...
Một thế hệ cư dân đang lặng lẽ rời khỏi phố thị ồn ã để tìm đến những miền sống an yên hơn, nơi Thung lũng Thanh Xuân Valley với thiên nhiên trong lành, nhịp sống đủ chậm và con người dành thời gian nhiều hơn cho chính mình. Và dưới đây là những điều đặc biệt tại Thanh Xuân Valley Vĩnh...
Khu đô thị MHDI Cam Ranh ( Khu nhà ở cán bộ vùng 4 Quân chủng Hải quân) do chủ đầu tư MHDI phát triển tại Bãi Dài Cam Ranh, Khánh Hòa được đánh giá cao về tiềm năng phát triển và chất lượng sống. Dự án được quy hoạch theo mô hình khu đô thị sinh thái, tích hợp nhiều tiện ích...
Chat Zalo
Chat Facebook
google-site-verification=hg90Q844_wiZL5g9EUVvPQWAmc65rnDBQGoO_xmdDvM