Email : nhadepthudo789@gmail.com
Hotline : 0978987813
Chung cư CT4 yên Nghĩa nằm trong quần thể Khu nhà ở Bộ tư lệnh Thủ đô. Được đầu tư phát triển bởi Tổng công ty Đầu tư Phát triển nhà và đô thị Bộ Quốc Phòng MHDI. CT4 Yên Nghĩa với thiết kế hiện đại quy mô 22 tầng tổng số 280 căn hộ, diện tích từ 67m2-100m2.
Phòng Kinh Doanh: 0964 136 132 (call/zalo)
Chung cư CT4 Yên Nghĩa đón cư dân về nhận nhà
Chung cư CT4 Yên Nghĩa là tòa căn hộ cuối cùng trong Khu nhà ở Bộ tư lệnh thủ đô Hà Nội do Tổng công ty đầu tư phát triển nhà và đô thị Bộ Quốc Phòng MHDI triển xây dựng và bàn giao năm 2024.
| Tên dự án: | Chung cư CT4 Yên Nghĩa - Chung cư bộ tư lệnh Thủ đô |
| Vị trí: | Khu nhà ở Bộ tư lệnh Thủ đô Hà Nội, Yên Nghĩa, Hà Đông |
| Chủ đầu tư: | MHDI - Tổng công ty đầu tư phát triển nhà và đô thị BQP |
| Tư Vấn Thiết Kế | Xí nghiệp tư vấn khảo sát thiết kế - MHDI |
| Tư Vấn Giám Sát | Công ty cổ phần đầu tư vầ công nghệ xây dựng IBST |
| Thi công | Xí nghiệp xây lắp - MHDI |
| Loại hình: | Tòa nhà căn hộ thương mại |
| Quy mô: | Chiều cao 22 tầng nổi, 14 căn/sàn, tổng 252 căn hộ. • Tầng 1: Sảnh, Gian hàng, Kiot thương mại • Tầng 2: Để xe máy • Tầng 3-22: Căn hộ để ở |
| Diện tích: | - Căn hộ 2 phòng ngủ: 67 - 78m2 - Căn hộ 3 phòng ngủ: 88 – 100m2 |
| Sở hữu: | Sổ hồng lâu dài |
| Giá Bán: | 40 triệu/m2 |
| Khởi công: | Quý I/2023 |
| Bàn giao: | Tháng 11/2024 |
| Hotline: | 0964 136 132 |
Vị trí Chung cư CT4 Yên Nghĩa nằm trong Khu nhà ở Bộ tư lệnh Thủ Đô sau bến xe Yên Nghĩa và đại học Phenikaa liên kết với các tuyến đường lớn như: Tố Hữu – Lê Văn Lương kéo dài, đường vành đai 3, đường Đại lộ Thăng Long, Lê Trọng Tấn kéo dài, đường Quang Trung, vành đai 4…
Đây là vị trí trung tâm dễ dàng kết nối tới các tỉnh phía bắc vào khu vực trung tâm nội thành hoặc các địa điểm vui chơi giải trí, mua sắm như: Aeon Mall Hà Đông, Big C Hà Đông, Trung tâm hội nghị, Big C Thăng Long…
Vị trí kết nối thuận tiện của CT4 Yên Nghĩa
+ Phía Tây Bắc: Khu dân cư, Vành đai 4.
+ Phía Tây Nam, Đông Nam: Giáp khu dân cư, view về bến xe Yên Nghĩa.
+ Phía Đông Bắc: Giáp doanh trại sư đoàn 301- Bộ tư lệnh Thủ đô.
CT4 Yên Nghĩa nằm trong khu nhà ở Bộ tư lệnh Thủ đô Hà Nội
Chung cư CT4 Yên Nghĩa bộ tư lệnh Thủ đô nằm trong liên kết vùng thuận tiện:
• Tàu điện trên cao: 2 phút di chuyển
• Công viên Thiên Văn Học: 7 phút di chuyển
• Nhà thi đấu quận Hà Đông: 8 phút di chuyển
• Melinh Plaza Hà Đông: 8 phút di chuyển
• Aeon Mall Hà Đông: 9 phút di chuyển
• Ga Hà Đông: 10 phút di chuyển
• Bưu điện Hà Đông: 10 phút di chuyển
• Bệnh viện Đa khoa Hà Đông: 10 phút di chuyển
• Công Viên Thiên Đường Bảo Sơn: 13 phút di chuyển
• Hồ Hoàn Kiếm: 40 phút di chuyển
• Sân bay Nội Bài: 42 phút di chuyển
Tiện ích CT4 đa dạng đủ đầy, Chỉ mất 15 phút để di chuyển từ dự án vào trung tâm thành phố. Dự án CT4 Yên Nghĩa - Chung cư bộ tư lệnh Thủ đô được thừa hưởng tất cả các hạ tầng xã hội đã hình thành sẵn trên địa bàn như: Hệ thống trường học từ mầm non đến THPT, chợ, bệnh viện, siêu thị…
Đặc biệt, ngay cạnh dự án là bến xe Yên Nghĩa cư dân CT4 Yên Nghĩa dễ dàng di chuyển vào nội đô bằng bus nhanh BRT Yên Nghĩa Kim Mã. Cùng với đó, Ga tuyến tàu điện trên cao Cát Linh - Hà Đông đã đi vào hoạt động giúp cư dân di chuyển vào trung tâm thành phố cực thuận tiện.
Đường sắt Cát Linh - Hà Đông kết nối chung cư CT4 Yên Nghĩa
Hệ thống trung tâm thương mại, đồ dùng gia đình, khu vui chơi nội khu…đáp ứng được mọi nhu cầu của cư dân.
Không gian cảnh quan nội khu CT4 Yên Nghĩa
Tiện ích nội khu có thể kể đến như:
| • Siêu thị: Eco Mart, Winmart+ | • Vườn cây nội khu |
| • Nhà hàng, cafe | • Vườn dạo bộ |
| • Khu vui chơi trẻ em | • Khu sinh hoạt cộng đồng |
| • Nhà trẻ | • Phòng tập thể thao |
| • Bãi đỗ xe | • Spa - Salon |
Không gian sảnh lễ tân tại tầng 1 chung cư CT4 Yên Nghĩa và khu vực 4 thang máy tốc độ cao.
Không gian sinh hoạt cộng đồng CT4 Yên Nghĩa rộng thoáng phục vụ nhu cầu cư dân
Chủ đầu tư MHDI mong muốn kiến tạo một không gian sống trong lành, tiện nghi, thoải mái tới cư dân. Vì vậy mà tiện ích nội khu dự án đã thỏa mãn nhu cầu môi trường sống xanh an lành của cư dân.
Trường mầm non nội khu dự án
Cây xanh được bố trí rộng khắp dự án
Phòng Kinh Doanh: 0964 136 132 (call/zalo)
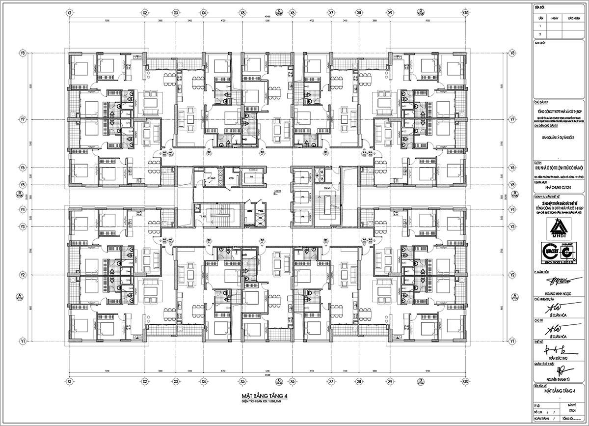
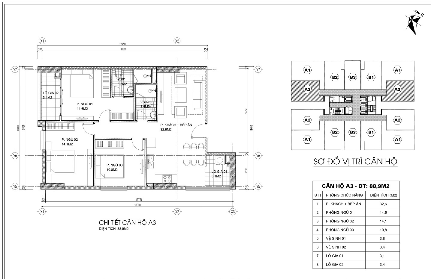
Chung cư CT4 cao 22 tầng nổi với thiết kế hiện đại, mặt bằng chung cư CT4 Yên Nghĩa tổng số 280 căn hộ, diện tích từ 67m2-100m2 mỗi mặt sàn được bố trí 14 căn hộ với tầm view rộng thoáng.
Chung cư CT4 Yên Nghĩa với thiết kế mặt bằng hiện đại, thông minh

Với thiết kế từ 2-3 phòng ngủ, ưu tiên không gian chung của gia đình. Từ phòng khách đến phòng ngủ hay phòng bếp đều đón nhiều ánh sáng và không khí trong lành từ thiên nhiên.
- Căn hộ 2 phòng ngủ: 67m2 - 78m2
- Căn hộ 3 phòng ngủ: 88m2– 100m2
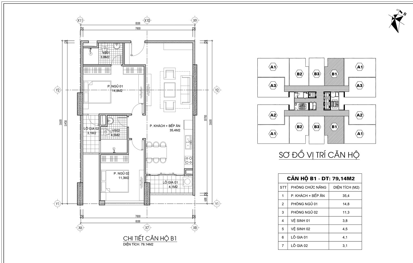
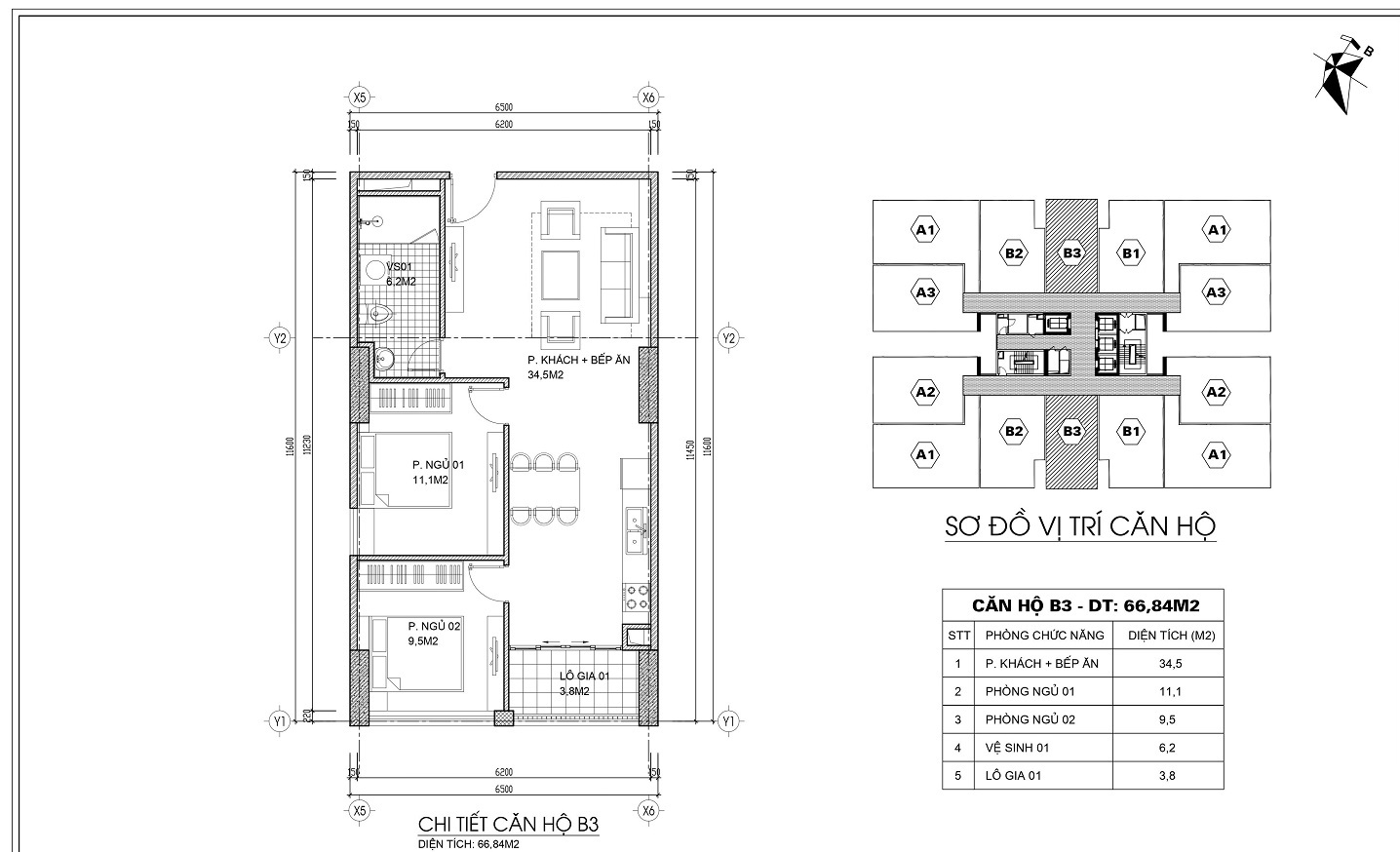
Căn hộ 67m2
Căn hộ 78m2
Căn hộ 88m2
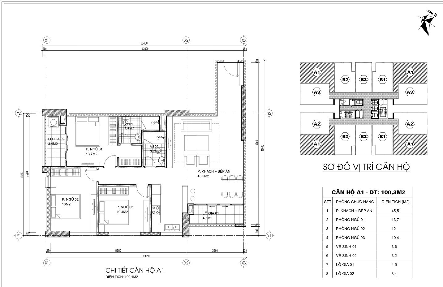
Căn hộ 100m2
Với không gian mở, phòng khách, phòng ngủ, phòng bếp không vách ngăn, phòng vệ sinh và logia được bố trí khéo léo. Tất cả tạo ra tổng thể không gian sống tiện nghi cho chủ nhân căn hộ.
Phòng khách với logia rộng thoáng giúp mở ra không gian cho căn hộ

Phối cảnh căn hộ chung cư CT4 Yên Nghĩa - chung cư bộ tư lệnh Thủ đô
Với diện tích tối ưu, không gian tràn ngập ánh sáng, các căn hộ chung cư CT4 Yên Nghĩa là dòng căn hộ cao cấp dành cho những gia đình hướng tới sự hiện đại, đẳng cấp, sự đầy đủ về tiện ích cũng như các dịch vụ hoàn hảo.
Là nơi “an cư lạc nghiệp”- mong muốn tìm kiếm một không gian đủ tiện nghi với ngân sách phù hợp cho các gia đình sinh sống và làm việc tại thủ đô.
• Các phòng được lát sàn gỗ công nghiệp chống ẩm với chất lượng cao
• Khu vực các nhà vệ sinh được trang bị thiết bị cơ bản đầy đủ; sàn gạch chống trơn, Lavabo, sen tắm, vòi xịt, bồn cầu, giá treo khăn…
• Trần căn hộ đã được hoàn thiện trần thạch cao. Trần thô có chiều cao 3,2m. Chiều cao từ sàn đến trần thạch cao 2,7m.
Phòng Kinh Doanh: 0964 136 132 (call/zalo)
Căn hộ CT4 Yên Nghĩa tràn ngập ánh sáng tự nhiên và bố trí khoa học


Căn hộ thực tế CT4 Yên Nghĩa đang trong quá trình hoàn thiện
Thiết bị vệ sinh chung cư CT4 Yên Nghĩa
• Với màu sơn trắng sứ đặc trưng khách hàng hoàn toàn có thể thêm các lớp màu sơn khác để phù hợp với sở thích một cách dễ dàng mà không cần tốn nhiều công.
• Hệ thống đèn trong căn hộ được trang bị hệ thống đèn trần downlight, trần được thi công bằng chất liệu thạch cao và sơn nước.
• Hệ thống điện, dây điện, ổ cắm, dây cáp, mạng được thiết kế gọn gàng âm tường cho nên rất an toàn cho người sử dụng, đồng thời đảm bảo tính thẩm mỹ.
• Khu vực bếp được thiết kế đầu chờ nước cấp vào và thoát nước, chưa có hệ tủ bếp, và thiết bị bếp, anh chị có thể tự do thiết kế cũng như lắp đặt khu vực tủ bếp tùy theo điều kiện kinh tế cũng như sở thích của mình.
• Hệ thống cửa chính là thép chống cháy, cửa các phòng ngủ, nhà vệ sinh là cửa gỗ công nghiệp, hệ thống cửa sổ, cửa ra các logia là cửa nhôm hệ chắc chắn được sơn tĩnh điện màu đen mờ,cùng với hệ thống kính cường lực trong suốt cho nên rất phù hợp với các phong cách thiết kế nội thất.
Phòng Kinh Doanh: 0964 136 132 (call/zalo)
Chung cư CT4 yên Nghĩa được khởi công và xây dựng bởi Tổng công ty đầu tư phát triển nhà và đô thị BQP - MHDI. Là đơn vị xây dựng uy tín hàng đầu của Bộ Quốc Phòng trong lĩnh vực xây dựng dân dụng.
Quý anh chị có thể theo dõi tiến độ tóm tắt sau:
Khởi công chung cư Ct4 Yên Nghĩa ngày 3/2/2023

Tiến độ chung cư CT4 Yên Nghĩa 31/7/2023. Dự án đã xong phần móng và đang thi công sàn tầng 1.
Ngày 21/10 dự án xong cốt sàn tầng 11, triển khai thi công 2 ca ngày đêm.
Tiến độ chung cư CT4 Yên Nghĩa 14/11/2023: Dự án thi công hệ thống cột chịu lực tầng 14, công tác chuẩn bị đổ sàn từng phần tầng 15
Tiến độ chung cư CT4 Yên Nghĩa ngày 28/11/2023 tiến hành công tác thi công xây dựng đến tầng 18, hoàn thiện ngăn phòng căn hộ đến tầng 10
chung cư CT4 Yên Nghĩa đã cất nóc và đang đi vào hoàn thiện căn hộ
Tiến độ chung cư CT4 yên Nghĩa tháng 7/2024 đã hoàn thiện công tác lắp kính, hạng mục logia, căn hộ bên trong đã đạt 90%. Sơn mặt ngoài tòa nhà đang được tiến hành các lớp tiếp theo
Tiến độ CT4 Yên Nghĩa 15/8/2024 đã lắp xong khung thép Logia, hệ cửa kính mặt ngoài công tác lắp đặt nội thất, hệ thống điện, nước đã hoàn thiện. Hạ tầng sân chung cư đang được dọn dẹp và đổ nền. Tiến độ chung cư CT4 Yên Nghĩa đạt 95%. Bước vào quá trình nghiệm thu kĩ thuật
Tiến độ CT4 Yên Nghĩa 12/9/2024 dự án đã hoàn thiện sơn trong ngoài tòa nhà. Công tác lắp đặt thiết bị nội thất, hệ thống điện, nước đã hoàn thiện. Hạ tầng sân chung cư đang được dọn dẹp và đổ nền. Tiến độ xây dựng chung cư CT4 Yên Nghĩa đạt 97%.
Tháng 10/2024 Chung cư CT4 Yên Nghĩa đã hoàn thiện nghiệm thu phòng cháy chữa cháy và công trình xây dựng. Ngày 31/10/2024 tiến hành bàn giao căn hộ cho cư dân.
Mọi thông tin và hình ảnh thi công dự án từ khi làm móng tới bàn giao, tiến độ chung cư CT4 yên Nghĩa sẽ được chúng tôi cập nhật liên tục hàng ngày tới quý anh chị.
Giá bán chung cư CT4 Yên Nghĩa tháng 3/2025 dao động mức giá 4x triệu/m2.
Mở bán CT4 Yên Nghĩa đợt 1 tổng số 60 căn thương mại từ 19/10/2023. Mở bán chung cư CT4 Yên Nghĩa đợt 2 tháng 4/2025 với 28 căn.
Phòng Kinh Doanh: 0964 136 132 (call/zalo)
Giá CT4 Yên Nghĩa căn 2 ngủ: 67m2, 78m2 - Giá từ 2,x Tỉ
Giá CT4 Yên Nghĩa căn 3 ngủ: 89m2, 100m2 - Giá từ 3,x Tỉ
| Loại căn | Diện Tích | Giá Bán |
| 2PN-1WC | 67m2 | 3 - 3.1 tỉ |
| 2PN-2WC | 80m2 | 3.6 - 3.7 tỉ |
| 2PN-2WC | 90m2 | 4.0 - 4.1 tỉ |
| 3PN-2WC | 100m2 | 4.5 - 4.6 tỉ |
Cập nhật quỹ căn ngoại giao CT4 Yên Nghĩa vào tên trực tiếp Chủ đầu tư đợt cuối: anh chị liên hệ Hotline: 0964 136 132 (zalo/call).
Cập nhật quỹ căn mua bán chuyển nhượng CT4 Yên Nghĩa giá rẻ: anh chị liên hệ Hotline phòng kinh doanh: 0964 136 132 (zalo/call)
Chung cư CT4 Yên Nghĩa đợt 1 với giá bán tốt nhất, chính sách tốt nhất, tiến độ thanh toán linh hoạt nhất với số lượng có hạn. Bảng hàng giá bán từng căn sẽ liên tục được cập nhật tại đây theo số hotline.
| Quy Trình Thanh Toán | |
| Đặt cọc | |
| Đợt 1 | Thanh toán 30% khi kí HĐMB |
| Đợt 2 | Thanh toán 15% khi xây dựng đến tầng 12 (T11/2023) |
| Đợt 3 | Thanh toán 10% khi xây dựng đến tầng 22 (T1/2023) |
| Đợt 4 | Thanh toán 15% khi hoàn thiện đạt 50% (T4/2024) |
| Đợt 5 | Thanh toán 25% khi bàn giao nhà ( quý III/ 2024) |
| Đợt 6 | Thanh toán 5% khi cấp Giấy chứng nhận căn hộ |
- Dự án Chung cư CT4 Yên Nghĩa được bảo lãnh vay vốn bởi các ngân hàng uy tín đang hoạt động tại Việt Nam là Ngân hàng BIDV, Vietcombank, MB Bank. Khách hàng có thể liên hệ một trong các ngân hàng này để vay vốn mua căn hộ ở dự án náy. Hạn mức vay vốn có thể lên tới 70% giá trị căn hộ.

- Điều đặc biệt là khách hàng vay vốn mua căn hộ sẽ được cán bộ ngân hàng tư vấn chi tiết về quy trình, thủ tục vay vốn. Khi đáp ứng đủ yêu cầu và được ngân hàng duyệt vay vốn thì giải ngân nhanh chóng. Lãi suất áp dụng cho vay vốn ngân hàng chỉ từ 7%/năm.
Dự án chung cư CT4 Yên Nghĩa nằm trong quần thể Khu nhà ở bộ tư lệnh thủ đô Hà Nội ngay phía sau bến xe Yên Nghĩa, cạnh sư đoàn 301.
Quy mô tòa CT4: cao 22 tầng với 280 căn hộ. Diện tích căn hộ từ 67 - 78 - 88 - 100m2
Giá bán chung cư CT4 Yên Nghĩa giao động mức giá 45tr/m2 thời điểm tháng 3/2025.
Tổng công ty Đầu tư phát triển nhà và Đô thị Bộ Quốc phòng - MHDI là chủ đầu tư dự án, với bề dày kinh nghiệm và dự án chất lượng, dự án CT4 Yên Nghĩa đang được rất nhiều người dân mong đợi.
- CT4 Yên Nghĩa mở bán như thế nào?
Dự án chung cư CT4 Yên Nghĩa mở bán vào 2 đợt tháng 10/2023 và tháng 4/2025. Bảng giá anh chị liên hệ phòng kinh doanh: 0964 136 132
- CT4 Yên Nghĩa có mấy tầng hầm?
Chung cư CT4 Yên Nghĩa không bố trí tầng hầm, Tầng 1 sẽ là kiot kinh doanh và thương mại, một phần phục vụ để xe, tầng 2 là khu vực để xe máy. Bố trí chỗ để xe của Khu nhà ở bộ tư Lệnh Thủ Đô sẽ là nhà để xe 4 tầng nổi cạnh CT4 sắp được triển khai thi công.
- Chung cư CT4 Yên Nghĩa khi nào bàn giao?
Chung cư CT4 Yên Nghĩa dự kiến bàn giao cho khách hàng nhận nhà về ở từ tháng 11/2024.
LIÊN HỆ TƯ VẤN VÀ ĐẶT LỊCH XEM DỰ ÁN
Phòng Kinh Doanh: 0964 136 132
>>>>Xem thêm: Đánh giá dự án chung cư CT4 Yên Nghĩa
>>>>Xem thêm: Nhóm Cư dân chung cư CT4 Yên Nghĩa
Chat Zalo
Chat Facebook
google-site-verification=hg90Q844_wiZL5g9EUVvPQWAmc65rnDBQGoO_xmdDvM