LIÊN HỆ TƯ VẤN VÀ ĐẶT LỊCH XEM DỰ ÁN
HOTLINE: 0378669695
************

- Tên dự án: Công trình hỗn hợp DVCC văn phòng và nhà ở CT2A Thạch Bàn Bộ Quốc Phòng.
- Vị trí dự án: Phường Thạch Bàn, Q. Long Biên, TP Hà Nội
- Chủ đầu tư: Tổng Công ty đầu tư phát triển nhà và đô thị Bộ Quốc Phòng.
- Đơn vị thiết kế: Công ty tư vấn Đại học Xây Dựng Hà Nội.
- Tổng diện tích: 14,2 ha
- Quy mô: Nhà thấp tầng, Nhà trẻ và chung cư cao tầng (CT1, CT2A, CT2B)
- Dự án CT2A Thạch Bàn: cao 27 tầng, 01 tầng hầm
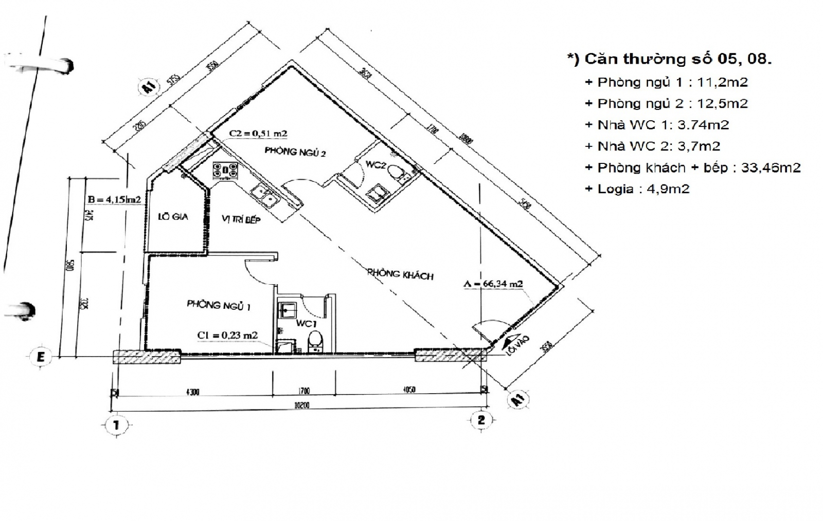
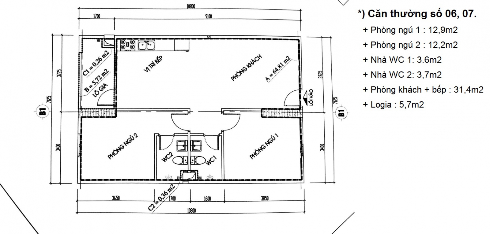
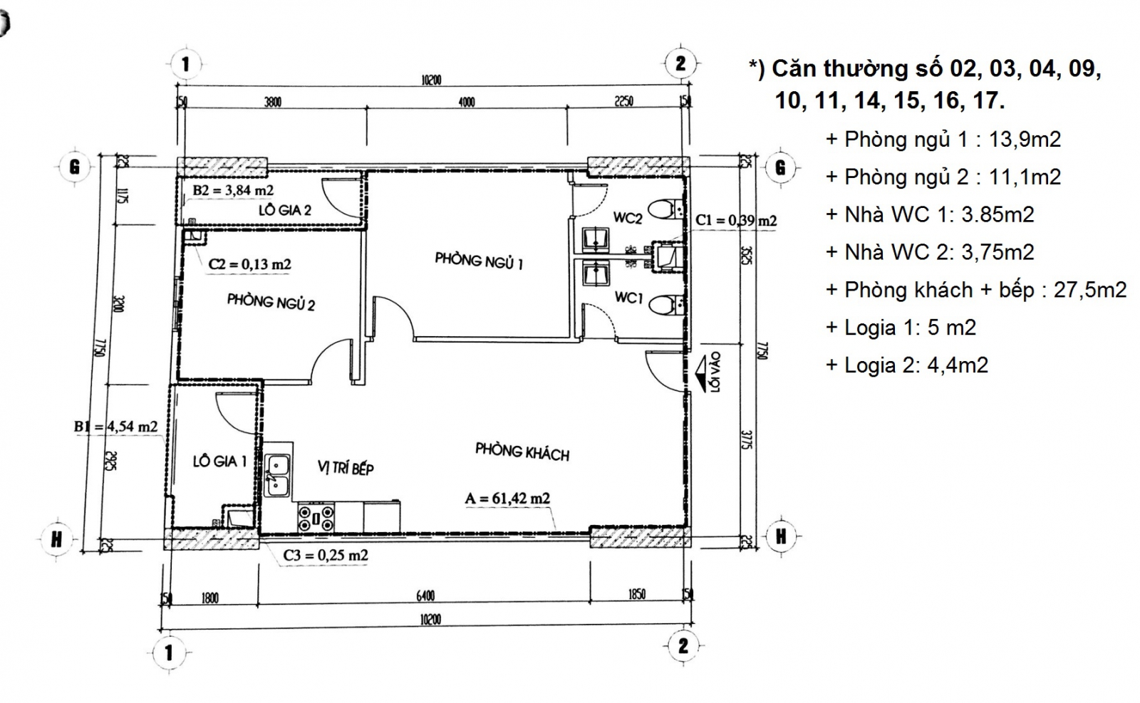
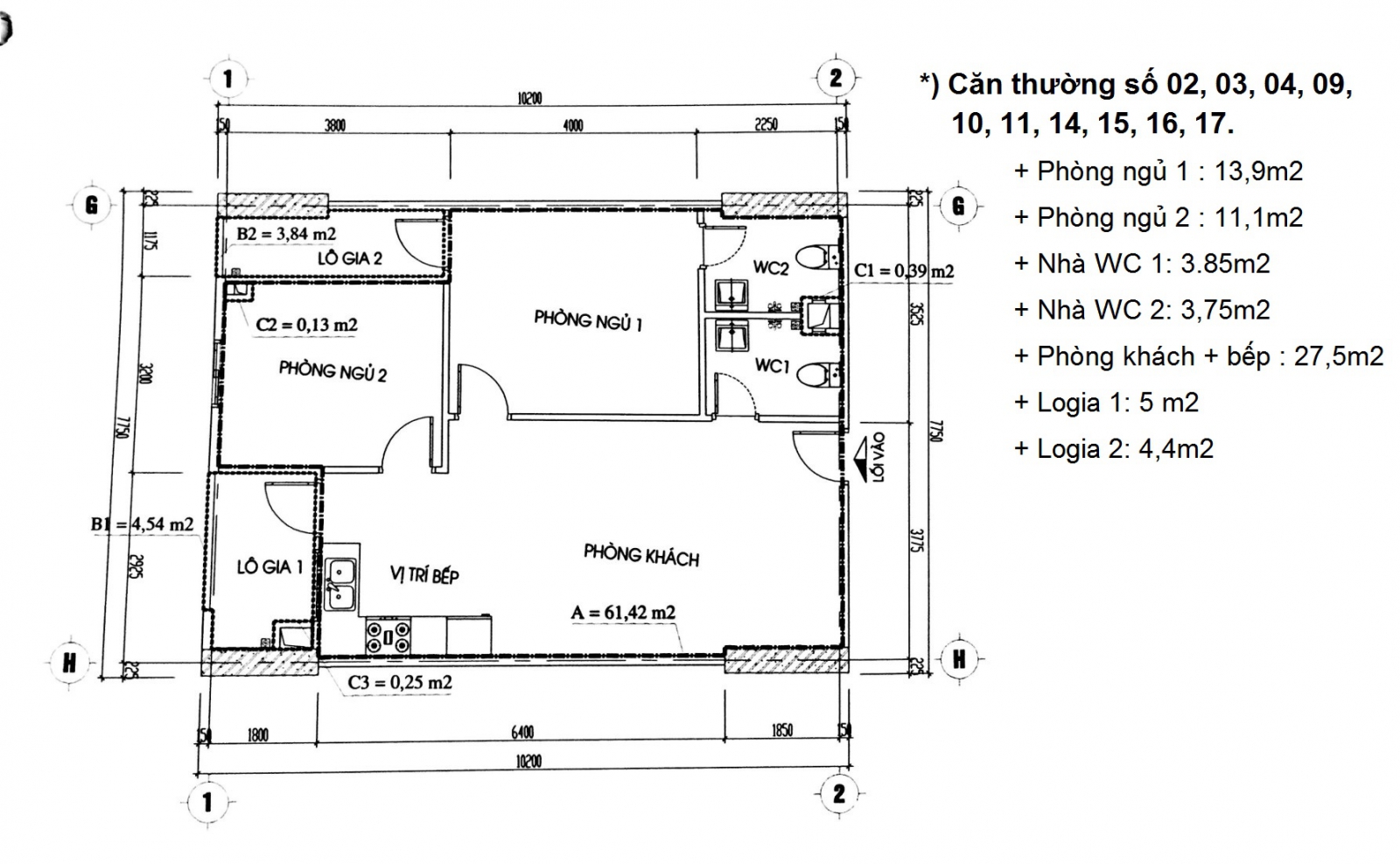
- Tổng số căn hộ: 450 căn hộ loại 2 phòng ngủ (từ tầng 4 đến tầng 26)
- Loại diện tích: 69,03m2 - 69,71m2 - 69,82m2
- Hình thức sở hữu: Sổ hồng vĩnh viễn

- Chung cư thạch bàn CT2A nằm trong khu quần thể dự án khu nhà ở Quân Đội Thạch Bàn được xây và phân cho cán bộ chiến sỹ BQP, nằm kề ngay sông Hồng, đối diện khu sinh thái lớn nhất có bầu không khí trong lành, là không gian lý tưởng để nghỉ dưỡng và tận hưởng cuộc sống. Nằm cách trung tâm thành phố không xa, rất tiện cho việc đi lại về các tỉnh phía đông Hà Nội như Hải Phòng, Quảng Ninh, Hải Dương, Bắc Ninh, Hưng yên....

- Dự án CT2A Thạch Bàn Long Biên có vị trí đắc địa, thuận lợi di chuyển vào nội đô Hà Nội cũng như các tỉnh thành lân cận như Hải Phòng, Quảng Ninh, Hải Dương, Bắc Ninh, Hưng Yên….vv
+ Cách hồ Hoàn Kiếm khoảng 6km,
+ Bến xe Gia Lâm 6km,
+ Dự án Vincom Village 3.5km,
+ Công Viên CNTT Hà Nội 1km,
+ Sân Golf Long Biên 2km,
+ Đại siêu thị AEON MALL khoảng 1km,
+ Siêu thị BigC Long Biên 3km ,
+ Khu đô thị Time City 4 km,
+ Gần quốc lộ 5, quốc lộ 1B, Cầu Vĩnh tuy, Cầu Thanh Trì, Chương Dương, thuận tiện cho giao thông nội đô và liên tỉnh…

- Cư dân tòa CT2A Thạch Bàn Long Biên sẽ được thừa hưởng toàn bộ tiện ích của khu đô thị, cũng như các tiện ích xung quanh của vùng. Trường mầm non chuẩn quốc gia, trường tiểu học, trung học và trung học phổ thông ngay liền kề, hệ thống công viên, cây xanh, chợ, trung tâm thương mại ngay sát khu đô thị, hệ thống đường xá, giao thông thuận tiện kết nối tới nhiều khu đô thị lớn, cũng như các tỉnh thành xung quanh.

- Chỉ 30% diện tích đất xây dựng giành cho các công trình để ở: Hệ thống biệt thự và nhà vườn đã hoàn thiện và 3 tòa chung cư cao tầng Ct1, Ct2B và Ct2a thì toàn bộ diện tích còn lại giành cho các công trình phúc lợi xã hội đảm bảo cuộc sống cao cấp nhất cho người dân.

- Hệ thống phúc lợi cao cấp bao gồm : các công trình sinh thái như vườn hoa, công viên, các công trình công cộng và bãi để xe thông minh… Ngoài ra dự án còn rất quan tâm đến sự phát triển của thế hệ tương lai khi đầu tư đồng bộ hệ thống trường từ Mầm non, Tiểu học đến Trung học chuẩn quốc gia.

- Do nằm ngay cạnh dòng sông Hồng nên chung cư hưởng trọn vẹn bầu không khí thoáng mát, trong lành của lá phổi xanh phía Bắc. Nhờ có góc nghiêng mà tòa chung cư có thể hứng trọn được ánh nắng trong lành của buổi sớm mai và tránh nắng tuyệt đối vào buổi chiều mang đến không gian đón sáng cho căn hộ.

- Cư dân dự án Ct2 Thạch Bàn Bộ quốc Phòng có thể tự hào vì gia đình họ có cơ hội sống trong một môi trường đẳng cấp không khác gì một khu đô thị sinh thái nằm giữa lòng thành phốvới cơ cấu sử dụng đất và mật độ xây dựng thấp.
- Khác với 2 tòa CT1 và CT2B triển khai trước đó, tại Chung cư CT2A Thạch Bàn, đã khắc phục được các nhược điểm về thiết kế. Tất cả các căn hộ đều vuông vắn, dễ bố trí nội thất, đặc biệt phòng nào trong căn hộ cũng được thiết kế đón thoáng tự nhiên.


- Với lợi thế vượt trội về vị trí nằm ngay cạnh sông Hồng và nằm trong khu du lịch sinh thái của thủ đô Hà Nội, Chung cư Ct2a Thạch Bàn gửi gắm thông điệp mang ý nghĩa chủ đạo: “Tạo lập một không gian sống luôn hòa quyện cùng thiên nhiên và tràn đầy năng lượng”.



- Dự án với các căn hộ được thiết kế sang trọng, phù hợp xu hướng thiết kế hiện nay và cả trong tương lai mang đến sự tận dụng tối ưu về diện tích.
LIÊN HỆ TƯ VẤN VÀ ĐẶT LỊCH XEM DỰ ÁN
HOTLINE: 0378669695
************
Chat Zalo
Chat Facebook
google-site-verification=hg90Q844_wiZL5g9EUVvPQWAmc65rnDBQGoO_xmdDvM