Email : nhadepthudo789@gmail.com
Hotline : 0978987813
B32 Đại Mỗ là dự án nhà bao gồm chung cư, biệt thự, nhà liền kề tại phường Đại Mỗ quận Nam Từ Liêm. Với vị trí đắc địa, không gian sống lý tưởng cùng mức giá siêu hợp lý chỉ 20 triệu/m2, Thăng Long City - B32 Đại Mỗ xứng đáng là dự án mà cư dân mong chờ nhất 2023 tại Hà Nội.

Tên dự án: dự án B32 Đại Mỗ hay còn được gọi Thăng Long City.
Chủ đầu tư: Công ty TNHH Thăng Long.
Vị trí dự án: Đường 70 phường Đại Mỗ, Nam Từ Liêm, Hà Nội.
Mật độ xây dựng: 38,9%.
Diện tích: 5ha.
Đơn vị thiết kế: Công ty Cổ phần kiến trúc 3A.
Nhà thầu và thi công: Công ty TNHH Đầu tư & Phát triển Tây Hồ
Quy Mô: 2 tòa chung cư , 22 lô biệt thự và 156 Lô Nhà Liền kề
- Chung cư CT1 B32 Đại Mỗ: 28 tầng, 2 hầm, 4 TTTM, 600 căn hộ, Diện tích 76 – 117m2
- Liền kề gồm 56 lô, 2 khu B1 và B2, diện tích 65 – 85m2
- Biệt thự: 22 lô cao 3 tầng, diện tích 120m2 – 160m2.
Phí dịch vụ: 5000đ/m2, nước sạch Hà Đông, điện lực Nam Từ Liêm
Khởi công: Quý III/2016.
Bàn giao: GĐ 1 Quý IV/2018. GĐ 2 Quý 4/2023
Dự án B32 Đại Mỗ sở hữu vị trí đắc địa trên mặt đường 70 tấp nập, với các mặt tiếp giáp:

Phía Đông: đường quy hoạch rộng 17m, giáp Ngân hàng TMCP Xăng Dầu;
Phía Tây: đường quy hoạch rộng 20.5m, Gần Học viện Y Dược Cổ Truyền Việt Nam.
Phía Nam: đường quy hoạch rộng 27m, giáp dự án FLC Đại Mỗ.
Phía Bắc: đường quy hoạch rộng 30m, giáp Ủy Ban nhân dân phường Đại Mỗ.
Từ vị trí dự án, cư dân dễ dàng di chuyển đến trung tâm Thủ đô và các quận nội thành, cũng như các tỉnh thành lân cận qua các tuyến đường huyết mạch như: đường vành đai 3, đại lộ Thăng Long, Tố Hữu – Lê văn Lương, Lê Quang Đạo kéo dài – Mỹ Đình…

• Aeon Mall Hà Đông: 300m
• Hồ điều hòa Nam Cường: 700m
• Khu vui chơi giải trí Thiên Đường Bảo Sơn: 2km
• Trung Hòa Nhân Chính: 5km
• Big C Thăng Long: 5,5km
• Sân vận động Mỹ Đình: 4,3km
Trong vòng bán kính 2km, từ vị trí dự án rất gần nhiều trường học, mầm non:
• Trường mầm non Đại Mỗ: 100m
• Trường mầm non quốc Tế: 500m
• Trường tiểu học Trần Quốc Toản: 450m
• Trường phổ thông quốc tế Việt Nam: 500m
• Trường THCS Lê Quý Đôn: 2km
• Trường THCS, THPT Đại Mỗ: 400m
• Trường quốc tế Nhật Bản: 1,5km
• Trường Amsterdam: 5,5km và nhiều trường đại học cao cấp khác.
Xung quanh dự án được bao bọc bởi hàng loạt khu đô thị hiện đại, cao cấp đã và đang đi vào hoạt động ổn định đồng bộ như: Khu đô thị Dương Nội, Geleximco Lê Trọng Tấn, An Hưng, Văn Khê, khu biệt thự An Phú Shop Villa. Và sắp tới, siêu đô thị Vinhomes Smart City với quy mô lớn nhất khu vực, khu đô thị FLC Premier Park….
Ngoài ra, dự án còn rất gần những bệnh viện lớn uy tín: Bệnh viện đa khoa Hà Đông, bệnh viện quốc tế Nam Cường, bệnh viện đa khoa Y Học Cổ truyền…
Nằm trong quần thể khu đô thị rộng lớn, ngay sát dự án Flc Garden City Đại Mỗ, dự án Thăng Long City thừa hưởng toàn bộ cơ sở hạ tầng sẵn có của khu vực. Nơi đây hứa hẹn sẽ là điểm nóng về Bất động sản trong thời gian tới.
Dự án B32 Đại Mỗ với mật độ xây dựng chỉ 38,9%, còn lại hơn 61% diện tích đất làm khuôn viên, cảnh quan tạo môi trường sống xanh an lành cho cư dân. Các tòa chung cư B32 Đại Mỗ được quy hoạch từ tầng 1 đến tầng 4 của tòa nhà làm khu tiện ích phục vụ cư dân như: trung tâm mua sắm, siêu thị mini, quán Cafe, nhà hàng…

Tiện ích nội khu B32 Đại Mỗ:
• Bể bơi trong nhà
• Phòng Gym, Spa
• Nhà trẻ
• Khu vui chơi trẻ em
• Phòng sinh hoạt cộng đồng
• Công viên cảnh quan
• Tiện ích ngoại khu
Vườn hoa nội khu B32 Đại Mỗ
Hiếm có dự án giá rẻ nào được sở hữu tiện ích ngoại khu đẳng cấp như B32 Đại Mỗ - Thăng Long City, với các trường học, bệnh viện, công viên, trung tâm thương mại lớn chỉ cách chưa đầy 2km. Cư dân luôn được sống trong môi trường trong lành và dễ dàng tiếp cận với đầy đủ các tiện ích, dịch vụ cao cấp, hiện đại ngay tại khu căn hộ của mình.
- Đại siêu thị Aeon Mall Hà Đông chỉ cách 300m sẽ là nơi gia đình vui vẻ mua sắm mỗi ngày
- Công viên thiên văn học, hồ điều hòa Bách Thủy Hợp
- Bệnh viện quốc tế Nam Cường.
- Trung tâm thương mại, mua sắm Vincom Mega Mall Đại Mỗ.
- Cùng với đó, tại dự án hệ thống an ninh bảo vệ 3 lớp nghiêm ngặt, camera giám sát 24/24.
- Khuôn viên dự án được chủ đầu tư bố trí đường dạo bộ, khu vui chơi dành cho trẻ em…
Dự án B32 Đại Mỗ là quần thể khu đô thị có quy mô 5ha bao gồm nhà ở cao tầng và thấp tầng. Khi đi vào hoạt động, dự án sẽ cung câp ra thị trường 600 căn hộ chung cư và 109 lô Biệt thự Liền kề cao cấp. Cụ thể như sau:
Mặt bằng bố trí các khu chức năng B32 Đại Mỗ
Số tòa chung cư: 02 tòa là CT1 và CT2
Chiều cao: 30 tầng;
Số tầng hầm: 02 tầng
Tổng số căn hộ: 600 căn

Tầng 1 đến tầng 4: trung tâm thương mại, dịch vụ, mua sắm, trường mầm non…
Tầng 5 đến 26: là căn hộ chung cư để ở.
Mật độ căn hộ: 14 căn/sàn, 2 thang thoát hiểm, 4 thang máy/sàn.
Mật độ căn hộ/thang máy: 3,5 căn hộ/thang
Diện tích căn hộ: từ 74m2 – 111m2;
Hình thức sở hữu: Sổ hồng lâu dài.
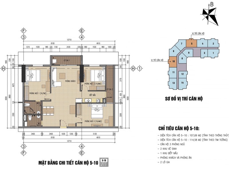
Mặt bằng tòa CT1 Thăng Long City
Căn hộ A1: số lượng 02 căn, diện tích 103m2
Căn hộ A2: số lượng 02 căn, diện tích 123,4m2
Căn hộ A3: số lượng 02 căn, diện tích 115,4m2
Căn hộ A4: 2 PN, số lượng 02 căn, diện tích 79,6m2
Căn hộ A5: 2 PN, Số lượng 02 căn, diện tích 86m2
Căn hộ A6:2 PN, số lượng 02 căn, diện tích 74,6m2
Chung cư CT2 B32 Đại Mỗ
Mặt bằng chung cư CT2 dự án B32 Đại Mỗ: được bố trí 12 căn/sàn, và 4 thang máy tốc độ cao, và 2 thang thoát hiểm. Do đó, mật độ căn hộ cực thấp, diệ tích căn hộ đa dạng, nhiều hướng đẹp, thiết kế tối ưu diện tích sử dụng.
Phối cảnh chung cư CT2 B32 Đại Mỗ

Tòa CT2 có có tầm view thoáng, không bị che chắn bởi tòa cao tầng nào. Với mặt nhìn sang hồ điều hòa trong khu đô thị FLC Đại Mỗ và hồ công viên Thiên Văn Học nơi đây sẽ là lựa chọn hoàn hảo cho cư dân tương lai.
Liền kề B32 Đại Mỗ: 156 lô với 2 dãy B1 và B2
Diện tích khu đất: 14.369 m2;

Số lượng: 101 lô
Chiều cao: 4 tầng;
Diện tích đất: 86m2;
Kích thước điển hình: 5×17,2m.
Khu liền kề B2
Số lượng: 52 lô
Chiều cao: 4 tầng;
Kích thước điển hình: 6x17m và 5x20m;
Diện tích mỗi nhà: 100m2 – 102m2.
Diện tích đất & giá bán vừa phải, nhưng vẫn đủ đáp ứng không gian sinh hoạt cho 5 – 7 người, khiến nhà liền kề luôn là dòng sản phẩm được ưa chuộng bởi nhiều gia đình.

Bán liền kề B32 Đại Mỗ: Liên hệ 0967 662 982
Tổng số lô: 22 lô
Chiều cao: 3 tầng.
Diện tích khu đất: 6.034 m2.
Diện tích đất xây dựng: 3.238 m2.
Diện tích biệt thự: 120m2 – 160m2.
Kích thước điển hình: 13x17m và 13x20m.
Khu biệt thự B32 Đại Mỗ với vị trí đắc địa mặt đường chính của dự án
Biệt thự B32 Đại Mỗ được sắp đặt hài hòa xen kẽ với những lối đi rợp bóng cây và tiểu cảnh với lối thiết kế hướng đến khu đô thị xanh. Kiến trúc mặt tiền làm nổi bật cá tính của ngôi nhà với cách xử lý kiến trúc hiện đại mang đậm phong cách hiện đại.
Khu biệt thự liền kề Thăng Long City Đại Mỗ có diện tích vừa phải, đa dạng, phù hợp với tài chính. Với vị trí tọa lạc ngay mặt đường 70 mở rộng, kết nối dễ dàng, thuận tiện kinh doanh. Nơi đây không chỉ là nhà ở, mà còn sinh lợi nhuận ngay chính ngôi nhà của mình, đây cũng là cơ hội đầu tư cực hấp dẫn cho những khách hàng đầu tư.
Bán biệt thự B32 Đại Mỗ: Liên hệ 0967 662 982
Dự án B32 Đại Mỗ là tổ hợp căn hộ và biệt thự liền kề phân cấp cho cán bộ, lãnh đạo cục B32, và 1 phần bán thương mại, nên sẽ có giá bán rất hợp lý, phù hợp với đại đa phần tài chính của khách hàng sử dụng.
Giá bán chung cư B32 Đại Mỗ giao động từ 1,4 tỉ - 1,8 tỷ
Căn hộ 2 phòng ngủ: từ 1,4 tỷ/căn
Căn hộ 3 phòng ngủ: từ 1,8 tỷ/căn
(giá bán bao gồm VAT và nội thất bàn giao cơ bản)
- Giá bán liền kề B32 Đại Mỗ: Liên hệ 0967 662 982
- Giá bán biệt thự B32 Đại Mỗ: Liên hệ 0967 662 982
Chính sách bán hàng:
Miễn phí 02 năm phí quản dịch vụ lý
Miễn phí 01 năm trải nghiệm bể bơi, trong nhà, sky view 5*.
Chính sách hỗ trợ lãi suất
Hỗ trợ lãi suất 0% trong thời gian tối đa 12 tháng
Hỗ trợ vay 70% giá trị hợp đồng mua bán
Thời gian vay vốn đến 240 tháng.
Ngân hàng giải ngân: BIDV, Vietcombank…
Tòa CT1 Thăng Long City đã hoàn thiện và đưa vào sử dụng từ 2019 với dịch vụ điện,nước,phòng cháy chữa cháy và quản lí rất tốt. Cộng đồng dân cư thân thiện, sẵn sàng chia sẻ
Tòa CT2 đang trong quá trình thi công hoàn thiện
Khu nhà biệt thự liền kề B32 Đại Mỗ sẽ được khởi công quý 3/2023




Tọa lạc tại vị trí chiến lược, ngay mặt đường 70 mở rộng, cư dân tương lai dễ dàng, thuận tiện di chuyển vào trung tâm Thủ đô và những vị trí trọng điểm qua những tuyến đường huyết mạch như: đại lộ Thăng Long, Lê Quang Đạo, Lê Văn Lương – Tố Hữu…
Vị trí đắc địa dự án B32 Đại Mỗ
Công viên điều hòa Thiên văn học hơn 10ha, tất cả chỉ cách dự án 300 - 500m mở ra không gian sống thuần khiết và trong lành, tạo nên tinh thần tích cực, sức khỏe dồi dào cho mọi thành viên.
mật độ xây dựng 38.9% Chủ đầu tư bố trí nhiều khu tiện ích phục vụ cư dân: nhiều không gian cây xanh ,Bể bơi trong nhà, Sky garden, trung tâm thương mại mua sắm, hệ thống an ninh chặt chẽ, hệ thống phòng cháy chữa cháy hiện đại….
Dưới lối thiết kế tinh tế, dự án là quần thể gồm chung cư và Biệt thự Liền kề cao cấp, các căn hộ có diện tích nhỏ phù hợp xen kẽ với các tiện ích và cây xanh, các khu vực chức năng tối ưu diện tích sử dụng, đáp ứng nhu cầu sử dụng đa dạng của cư dân.

Chung cư Thăng Long City Đại Mỗ được quy hoạch cấp phép cho lãnh đạo, cán bộ nhân viên cục B32, trực thuộc cơ quan nhà nước, nên khách hàng hoàn toàn yên tâm về hồ sơ pháp lý dự án.
Cùng với đó, công ty TNHH Thăng Long đã trải qua gần 30 năm phát triển, đã hoàn thành bàn giao đúng tiến độ ở hàng loạt các dự án trải dài trên cả nước như: 113 Trung Kính, Gia Phát Apartment…
Dự án có giá bán rất hợp lý, chỉ từ 1,4 tỷ đã sở hữu ngay căn hộ 2 phòng ngủ, 2wc, sở hữu Liền kề, biệt thự chỉ từ 5 tỷ/lô. Ngay cạnh dự án là trung tâm mua sắm Aeon Mall Hà Đông đã hoạt động, và các khu đô thị lân cận có giá bán rất cao, mà giá bán dự án Thăng Long City chỉ bằng 1/3 các dự án lân cận khác.
Với không gian sống đẳng cấp, môi trường sống đầy đủ tiện ích, an ninh đa lớp chắc chắn, không chỉ phục vụ đầy đủ nhu cầu mà còn ngầm khẳng định sự thịnh vượng của gia chủ. Ngoài ra còn rất nhiều lí do xứng đáng để an cư tại B32 Đại Mỗ.
Chủ đầu tư Khu đô thị B32 Đại Mỗ luôn hướng tới mục tiêu vì cộng đồng với đầy đủ các dịch vụ tiện nghi, chú trọng đến cảnh quan và không gian sinh hoạt chung dành cho cư dân.Từ cơ sở thông tin chi tiết Nhà Đẹp Thủ Đô Chúc cho quý anh chị sẽ lựa chọn cho mình sản phẩm phù hợp với nhu cầu của mình.
Bảng giá Liền kề, Biệt thự, chung cư B32 Đại Mỗ
Phòng Kinh Doanh: 0967 662 982
Chat Zalo
Chat Facebook
google-site-verification=hg90Q844_wiZL5g9EUVvPQWAmc65rnDBQGoO_xmdDvM